Živí se ze třmene jako mlynář.
(německé rčení)

mlýn V Dubinách

mlýn V Dubinách
38
Čejkovice
286 01
Kutná Hora
Čejkovice u Zbýšova
49° 47' 25.2'', 15° 20' 26.2''
Mlýniště bez mlýna
Již dávno neexistující mlýn pod hrází rybníka. Mlýn není vidět ani na leteckém mapování z roku 1938. Pouze na starých katastrálních mapách z roku 1838. Zajímavé je, že budova na sever od rybníka má č.p. 38, které měl mlýn, ale o mlýn se zcela jistě nejedná. Snad nějaké přenesení č.p.
Severovýchod od obce Dobrovítov
Klejnárka
volně přístupný

Historie mlýna obsahuje událost z období:

Příjmení mlynářů působících na mlýně:

Sobotka

Historie mlýna také obsahuje:

z matriky: rok 1888 psán nájemce panského mlýna čp. 38 František Sobotka.
Zároveň jeho děd František Král, byl mlynář v Komorcích 2. (Zikl)

Mlýn je vyobrazen na:

Předměty spojené s osobou mlynáře a provozu:

    neexistuje
    05 2012
      venkovský
      mlýn na potoku (50 - 1000 l/s)
            • zcela bez technologie aj.
            Žádná položka není vyplněna
            1891: Kolo žene obyčejné české složení s kamenem 73 cm v průměru měřícím.
            • rybník
            17. července 1891 zasazeno normální znamení při knížecím mlýně resp. při stávajícím rybníku kat. čís. 198 v Dobrovítově
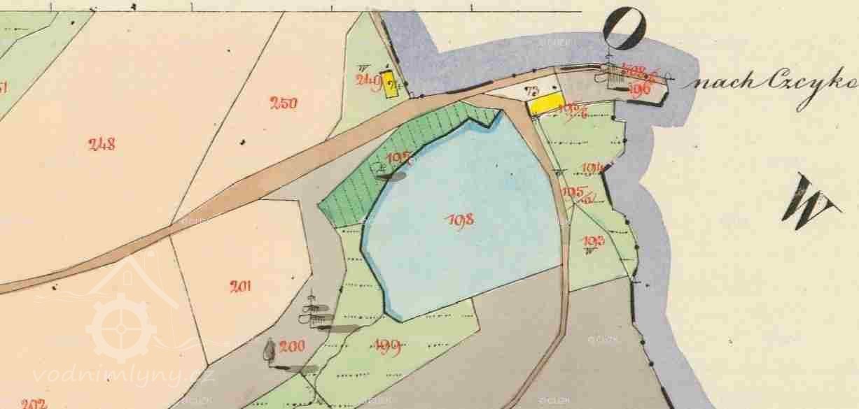
            Mlýn nazvaný Dubina leží pod rybníčkem. Přebytečná voda tohoto rybníka odvádí se jalovým splavem nacházejícím se při pravém konci čelní hráze.
            Týž opatřen jest dvěma stavítky, na které klade mlynář, když chce mlíti nástavky. Při levém konci čelní hráze nachází se stavítko, kterým se voda pouští na mlýnské kolo, které jest na vrchní vodu zařízeno.
            Jalový splav má dva otvory, které ve světlosti 1,45 m měřící, kteréž odděleny jsou sloupkem 27 cm silným.
            Kontrolní bod čili cejch, zasazen byl při pravé straně čelní hráze a jest jeho poloha z náčrtku patrna.
            Kontrolní bod jest kamenný sloupec 87 cm dlouhý, v průřezu 22/24 cm měřící, do jehož hlavy zasazen byl železný hřeb označený písmeny F. A. 1891.
            Vrchní poloha tohoto hřebu značí cejch, čili kontrolní bod. Sloupec umístěn jest do vykopané jámy a obezděn.
            Typvodní kolo na vrchní vodu
            StavZaniklý
            Popis1891: Kolo na vrchní vodu v průměru 3,33 m, jest ve světlosti 61,5 cm široké, celá šířka i s věncem měří 74 cm. Hloubka korečků obnáší 20,5 cm.
            Typvodní kolo na vrchní vodu
            StavZaniklý
            Popis1891: Kolo na vrchní vodu v průměru 3,33 m, jest ve světlosti 61,5 cm široké, celá šířka i s věncem měří 74 cm. Hloubka korečků obnáší 20,5 cm.
            Žádná položka není vyplněna
            Historické technologické prvky
            AutorJosef Jirousek
            NázevVodní mlýny na Kutnohorsku 2
            Rok vydání2025
            Místo vydáníKutná Hora
            Další upřesněnís. 131-132
            AutorJosef Jirousek
            NázevVodní mlýny na Kutnohorsku 2
            Rok vydání2025
            Místo vydáníKutná Hora
            Další upřesněnís. 131-132

            Žádná položka není vyplněna

            Základní obrázky

            Historické mapy

            Současné fotografie - exteriér

            Současné fotografie - vodní dílo

            Vytvořeno

            7.3.2013 13:31 uživatelem Jaroslav Procházka

            Majitel nemovitosti

            Není vyplněn

            Spoluautoři

            Uživatel Poslední změna
            Rudolf (Rudolf Šimek) 3.5.2021 19:27
            doxa (Jan Škoda) 5.4.2025 22:08