Všechny cesty vedou do mlýna.
(německé přísloví)

Belhovský, Řepišův, Štěrbův mlýn, Malomlýnec

Belhovský, Řepišův, Štěrbův mlýn, Malomlýnec
9
Dewetterova
Týn nad Vltavou
375 01
České Budějovice
Týn nad Vltavou
49° 13' 29.6'', 14° 24' 50.5''
Mlýniště bez mlýna
Původně středověký mlýn z konce 13. stol., 1643 (nebo 1651) zakoupený městem, 1781 odkoupený Jakubem Honsou, zbořen v roce 1960 při regulaci Vltavy před napouštěním vodní nádrže Orlík, na místě mlýna dnes čistička odpadních vod. Poblíž mlýna stávala jirchářská valcha, kde se 1769 narodil zakladatel první novočeské školy básnické Antonín Jaroslav Puchmajer.
500 m sz od kostela sv. Jakuba v Týně nad Vltavou
Vltava
volně přístupný

Historie mlýna obsahuje událost z období:

vznikl kol. 1280 za vlády biskupa Tobiáše z Bechyně

1379 mlýn měl 3 kola, mlynář Hořelka platil 68 grošů

Události
  • První písemná zmínka o existenci vodního díla
  • Vznik mlynářské živnosti
Hospodářský typ mlýna
  • Poddanský

1582 majitel Vít Belha, městský písař

1601 mlynář Hlava

Hospodářský typ mlýna
  • Poddanský

1643 (nebo 1651) zakoupila týnská obec, měl sloužit výhradně pro čtvrť Dolní Brašov, za přijetí meliva odjinud hrozila mlynáři pokuta 1 bečky soli

1651 Soupis poddaných podle víry: mlynář Václav Zmrhal (30), manželka Anna (30), vdova Kateřina (45), mlynářčina matka, všichni katolíci

1661- (nebo 1687-) Pavel Zmrhal

cca 1700 u mlýna zřídil Pavel Puchmajer (pradědeček básníka Antonína Jaroslava Puchmajera nar. 1769 v Týně n/V.) jirchářskou valchu, zanikla v pol. 19. stol.

nájemci:

1707-1726 Vavřinec Šembera

1738-1739 Jiří Valoušek

1754-1762 Martin Zeman

1762-1770 Martin Honsa

1770-1772 Jakub Honsa, syn Pavla Honsy z panství Orlík

1780-1781 Tomáš Pimpri (Pimperle) z Vodňan

1781 zakoupil Jakub Honsa

1784 zemřel Jakub Honsa, po dobu nezletilosti jeho syna Jana Honsy vedla mlýn vdova Eleonora Honsová, později provdaná za Jakuba Měřičku z  protějšího Malostranského mlýna

Jan Honsa

1804-1813 František Honsa, zakoupil za 3100 zl.

1813-1815  Tomáš Žižkovský s manželkou Barborou

1815-1820 Jan Želízko z Českých Budějovic

1820-1821 Josef Bayer

1821-1829 František Svoboda

1822 povolena nástavba mlýna s podmínkou služebnosti průhonu dobytka přes dvůr

1829-1830 Jan Čaloun a Václav Steinocher, koupili za 4400 zl.

1830-1834 Josef Lang z Netolic

1834-1861 Josef Zelenka (1802-1880), 1839 se oženil s Marií Vodičkovou, po její smrti 1840 s Marií roz. Vodrážkovou z Písku

Hospodářský typ mlýna
  • Poddanský

do roku 1861 byl Josef Zelenka starostou v Týně, zemřel 1880

1879-1881 Jan Řepiš, syn mlynáře Petra Řepiše z Kamenného mlýna ve Vodňanech (původně se jmenovali Pimperlové)

1881 koupil jeho bratr František Řepiš (1854-1918) s manž. Marií roz. Faktorovou, dc. sedláka z Hvožďan u Vodňan, Jan si pořídil mechanickou platárnu ve Vodňanech

v 2. pol. 19. stol. v těsném sousedství mlýna vybudována továrna na soustružené zboží a hračky Alexandra Plešnera

září 1890 mlýn silně poškozen velkou povodní, zničeny zásoby mouky a obilí

1910 v mlýně zaměstnáni stárek, mládek, čeledín a služka, chová se zde 6 koní a hovězí dobytek

1913 zahájena výroba dřevěných rámečků na sušení tašk

Události
  • Zaznamenání katastrofy (požár, povodeň, zranění, úmrtí, aj.)
Hospodářský typ mlýna
Smíšený

duben 1918 zemřel František Řepiš, převzali synovci František (mlýn) a Adolf (pilu), synové Jan Řepiše, který držel mlýn 1879-1881, oba zůstali svobodní

ve mlýně šafář Josef Kadlec a strojník Josef Boubínský, na pile mistr Karel Seimel

1922-1930 František a Adolf Řepišové

28.2.1922 povoleno zřízení vaziště, valiště a skladiště surového i zpracovaného dříví

firma F.B.Řepiš, majitel prvního uměleckého válcového mlýna, strojní pily, výroby beden, vysoušecích rámečků a velkoobchod s dřívím a řezivem

koncem roku 1929 zakoupil František Štěrba (1886-1933, mlynářem vyučen v Lišově) s manž. Marií

1930- František Štěrba s manželkou Marií

1930 A. F. Repiš

01 1933 zemřela František Štěrba, 04 1933 zemřela Marie Štěrbová, zůstaly 4 nezlertilé děti, opatrovník Jan Valter, mlýn vede stárek Václav Šajnost

1934 V. Šajnost propuštěn, mlýn nadále vede Bohumi Dreksler z Moravy

 

Hospodářský typ mlýna
Smíšený

1941 vedení mlýna přebírá Jan Valter

1943 Stanislav Štěrba zatčen gestapem, až do konce války vězněn v koncentračním táboře Oranienburg

1947 mlýn přebírá Stanislav (Ladislav?) Štěrba

spory se znárodněným Benešovým mlýnem ohledně odběru vody v suchém roce 1948

1949 prozatímní národní správa - Václav Vobr z Benešova mlýna

provoz pily omezen

03 1951 na popud ONV v Týně zrušena národní správa firmy Štěrba podnikem Šumavské pily

09 1956 zahájena likvidace, mlýn byl již několik let mimo provoz, původně měla být zbořena jen pila  a strojovna turbíny a obytné objekty ponechány, nakonec rozhodnuto zbořit vše, objekty až do zboření sloužily jako sklady zeleniny n.p. Zelenina

1960 před napouštěním Orlické přehrady mlýn demolován

1964 se zvedla hladina Vltavy, sklady zeleniny částečně zatopeny

1971 pomník obětem válek přesunut ke starému mostu

 

Události
  • Zánik mlynářské živnosti
  • Zánik budovy mlýna

na místě mlýna dnes čistírna odpadních vod

Příjmení mlynářů působících na mlýně:

  • Řepiš
  • Hořelka
  • Belha
  • Hlava
  • Zmrhal
  • Šembera
  • Valoušek
  • Zeman
  • Honsa
  • Pimpri
  • Měřička
  • Žižkovský
  • Želízko
  • Bayer
  • Svoboda
  • Čaloun
  • Steinocher
  • Lang
  • Zelenka
  • Štěrba
  • Šejnost
  • Dreksler
  • Valter
  • Vobr
  • Pimperle

Historie mlýna také obsahuje:


Zobrazit více

Mlýn je vyobrazen na:

Předměty spojené s osobou mlynáře a provozu:

    neexistuje
    02 2018
      městský
      mlýn na velkých vodních tocích (7000 l/s a více)
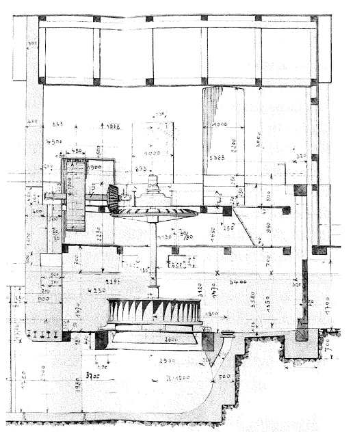
      mlýnice a dům pod jednou střechou, avšak dispozičně oddělené
        zděná
        jednopatrový
        1822 povolena nástavba patra
        budovy postaveny 1914
        mlýn tvořily 3 budovy, byly zde i nájemní byty
        1956 odhad před likvidací:
        mlýnská budova čtyřetážová, strojovna s turbínou, dvouetážový sklad, průjezd
        kolmo na mlýnici patrové obytné stavení, v přízemí byt s kuchyní a 3 pokoji, prádelnou, koupelnou, spíži a WC, v patře 3 byty, 2 x 2 pokoje a kuchyň, 1 x 3 pokoje a komora
        zděná pila se skladem na piliny a bednárnou
        kolmo na pilu a rovnoběžně s obytným stavením hospodářská budova stáje, vepřín, stodola a čeledník
        kolmo ke stodole druhý obytný dům, přízemní se dvěma byty (kuchyň + pokoj a kuchyň + 2 pokoje)
        v areálu garáže
        vše udržované a v dobrém stvu
        odhadnuto na 134.492 Kčs, poté redukováno na 49.500 Kčs, po odvolání opět 134 tis.
            • zcela bez technologie aj.
            Žádná položka není vyplněna
            1850: 4 složení
            1883 namísto starých složení 5 moderních válcových stolic s dvěma kamennými s 1 francouzským a 1 českým kamenem
            1956 likvidace mlýna:
            n.p. Jihočeské mlýny odkoupil šrotovník, reformu a aspiratér, vše značky Union, dále 2 cyklony s příslušenstvím, šnek, dvojitý výtah, automatickou váhu, dopravní šneky dély 7 a 10 m a trier.
            Českobudějovický obchod s ovocem a zeleninou: dopravní šneky o délce 7, 6, 4 a 2 x 2,5 m
            do šrotu pro velké opotřebení: loupačka, dvouválcová a 2 čtyřválcové stolice, transmise, řemenice, míchačka, výtahy, sací filtr, 2 rovinné vysévače, řezačka na kroupy a šneky
            Zaniklý
            • valcha
            U mlýna 1700-1850 jirchářská valcha
            1902 zřízena pila a dřevoobráběcí dílna - 2 pily okružní, 1 cylindrická, 6 soustuhů na dřevo, 15 polítovaček. Podle výkonu turbíny plánována instalace pásové pily a strojů na výrobu dřevité vlny v přístavku
            1908 přistavěna budova pily s rámovou pilou, dvěma cirkulárkami a hoblovačkou
            1913 výroba rámečků na sušení tašek
            1919 soustružnická dílna: 4 okružní pily, 1 pásová, hoblovačka, fréza
            1921 pila: 3 pily okružní, 2 rámové, 1 pendlová
            v pile, strojovně a kotelně zaměstnáno 35 dělníků
            • jez
            Společný jez s Malostranským mlýnem, zatopen vzdutím Orlické přehrady v roce 1962
            v jalovém žlabu slup na chytání ryb
            Typturbína Francisova
            StavZaniklý
            Výrobce
            Popis05 1906 Fr. Řepišovi vydáno povolení k instalaci 2 Francisových turbín o výkonu 30 a 16 HP s hltností 2706 a 1467 l/s
            20.10.1908 kolaudována pouze 1 turbína o hltnosti 4198 l/s a výkonu 50 HP
            1930: 1 turbína Francis, hltnost 2,7 m3/s, spád 1 m, výkon 30 HP
            Typturbína Francisova
            StavZaniklý
            Výrobce
            Popis05 1906 Fr. Řepišovi vydáno povolení k instalaci 2 Francisových turbín o výkonu 30 a 16 HP s hltností 2706 a 1467 l/s
            20.10.1908 kolaudována pouze 1 turbína o hltnosti 4198 l/s a výkonu 50 HP
            1930: 1 turbína Francis, hltnost 2,7 m3/s, spád 1 m, výkon 30 HP
            Typvodní kolo na spodní vodu
            StavZaniklý
            Výrobce
            Popis1379: 3 kola
            1850: 4 kola
            1883: redukováno na 2 kola, hltnost 6032 l/s, výkon 40 HP
            Typparní stroj, lokomobila
            StavZaniklý
            Popis1921 parní kotel s odběrem vody z Vltavy, spotřeba 10 l/min., výhřevná plocha 64 m2, tlak 7 atm., výkon 70 HP
            plechový komín 28 m vysoký
            Typparní stroj, lokomobila
            StavZaniklý
            Popis1921 parní kotel s odběrem vody z Vltavy, spotřeba 10 l/min., výhřevná plocha 64 m2, tlak 7 atm., výkon 70 HP
            plechový komín 28 m vysoký
            Historické technologické prvky
            AutorMinisterstvo financí
            NázevSeznam a mapa vodních děl republiky Československé
            Rok vydání1932
            Místo vydáníPraha
            Další upřesněníSešit 02 (České Budějovice), s. 38
            Odkaz
            Datum citace internetového zdroje
            AutorMinisterstvo financí
            NázevSeznam a mapa vodních děl republiky Československé
            Rok vydání1932
            Místo vydáníPraha
            Další upřesněníSešit 02 (České Budějovice), s. 38
            Odkaz
            Datum citace internetového zdroje
            AutorJosef Klempera
            NázevVodní mlýny v Čechách V.
            Rok vydání2002
            Místo vydáníPraha
            Další upřesněnís. 89
            Odkaz
            Datum citace internetového zdroje
            AutorMartina Sudová - Lubomír Procházka
            NázevVltavotýnsko (Zmizelé Čechy)
            Rok vydání2007
            Místo vydáníPraha - Litomyšl
            Další upřesnění
            Odkaz
            Datum citace internetového zdroje
            AutorMartina Sudová - Lubomír Procházka
            NázevVltavotýnský poutník
            Rok vydání2007
            Místo vydáníPraha
            Další upřesněnís. 122-125
            Odkaz
            Datum citace internetového zdroje
            AutorJaroslava Pixová
            NázevKdyž Vltava zpívala I., Od Týna po Rejsíkov
            Rok vydání2022
            Místo vydáníPutim
            Další upřesněnís. 104-116
            AutorJan Čáka
            NázevZmizelá Vltava
            Rok vydání1997
            Místo vydáníPraha
            Další upřesněnís. 180

            Žádná položka není vyplněna

            Základní obrázky

            Historické mapy

            Plány - stavební a konstrukční

            Obrazy

            Historické fotografie a pohlednice

            Vytvořeno

            14.2.2018 10:55 uživatelem doxa (Jan Škoda)

            Majitel nemovitosti

            Není vyplněn

            Spoluautoři

            Uživatel Poslední změna
            Rudolf (Rudolf Šimek) 7.2.2019 20:22
            Radomír Roup (Radomír Roup) 23.6.2018 10:10