Když je zrno na mlýnském kameni, rozemele se.
(německé přísloví)

Ratkův a Tomšův, Sovoluský mlýn; Rattkauer und Tomschen Mühle

Ratkův a Tomšův, Sovoluský mlýn; Rattkauer und Tomschen Mühle
16 a 17
Lachovice
364 01
Karlovy Vary
Lachovice
50° 5' 38.5'', 13° 3' 5.3''
Mlýniště bez mlýna
Původní středověký mlýn, od pol. 18. stol. v držení rodu Ratků. Před rokem 1841 majetkově rozdělen na Ratkův (čp. 16) a Tomšův (čp. 17), po I. světové válce opět sloučen. Zanikl krátce po odsunu německého obyvatelstva. Dnes z něj stojí zbytky obvodových zdí hlavní budovy. Ačkoliv leží na katastru Lachovic, bývá někdy zván Sovoluský.
Necelé 2 km sv. od Lachovic
Střela
volně přístupný

Obecná historie:

Mlýn je připomínaný již v 17. století jako Ratka Mühle. Své jméno měl podle starého mlynářského rodu, který zde půsbil (též Rattka nebo Radka). Název Ratka Mühle je použit ještě v prvním vojenském mapování. Již ve druhém vojenském mapování je však uveden již název Domschen Mühle (zatímco protilehlý kopec je označen "gegen die Radka Mühle). O jeho další historii zatím není nic bližšího známo. Zanikl krátce po 2. světové válce po odsunu německého obyvatelstva. Dnes z něho zbývají relikty masivních obvodových zdí hlavní budovy. Není známa ani žádná dochovaná fotografie mlýna.

Ve mlýně byla i trempská kronika. 8.8.1992 do ní přispěl i pan Oskar Schmidt, který se v tomto domě, v roce 1938 narodil, dnes žije ve Frankfurtu.


Historie mlýna obsahuje událost z období:

Údajně středověkého původu.

Události
  • Vznik mlynářské živnosti

1651 Martin Oheimb

od pol. 18. stol. rod Ratků

1841 mlýn rozdělen:

čp. 16 Jan Ratka

čp. 17 František Harisch

Události
  • První písemná zmínka o existenci vodního díla
Hospodářský typ mlýna
  • Poddanský

po I. světové válce mlýn opět sloučen

1930 Vojtěch Schmidt

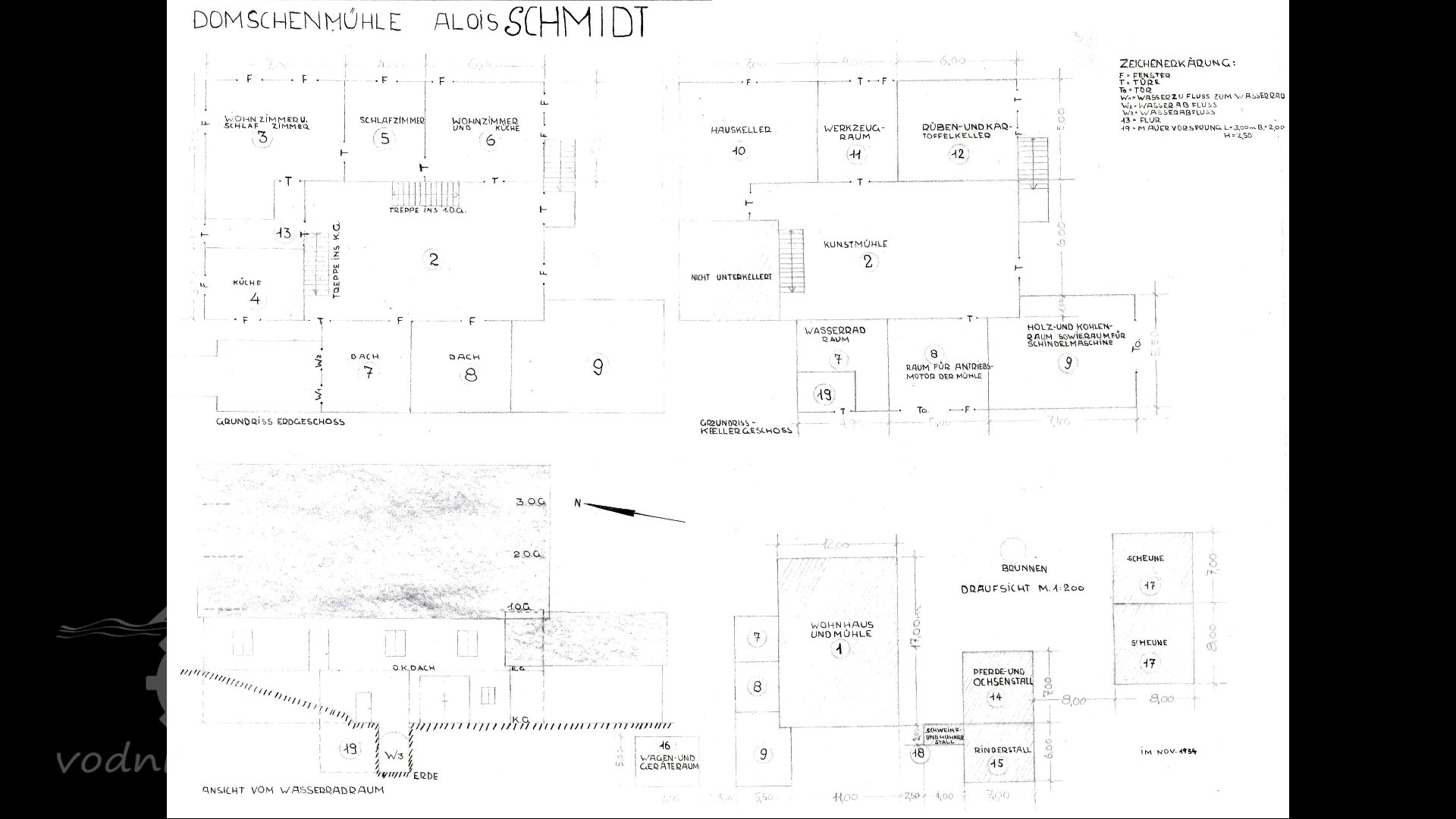
1945 poslední majitel Alois Schmidt

poté opuštěn

Události
  • Zánik mlynářské živnosti
  • Zánik budovy mlýna

Příjmení mlynářů působících na mlýně:

  • Oheimb
  • Ratka
  • Harisch
  • Schmidt

Historie mlýna také obsahuje:

1651 Martin Oheimb

1841 Jan Ratka (čp. 16)

1841 František Harisch (čp. 17)

1930 Vojtěch Schmidt

1945 Alois Schmidt

Poslední mlynář Alois Schmidt (zabit na západní frontě 8. ledna 1945). Můj otec Oskar Schmidt se narodil ve mlýně 24. srpna 1938.
V příloze jsou fotografie a kresba od učitele kreslíře mého otce z roku 1954. Půdorysy byly vypracovány společně s matkou podle vzpomínek z roku 1945. Jméno vojáka na fotografii není známo. (Wolfgang Schmidt, Bad Soden am Taunus)

Mlýn je vyobrazen na:

Předměty spojené s osobou mlynáře a provozu:

    zřícenina
    05 2012
      venkovský
      mlýn na malé řece (1000 – 7000 l/s)
        zděná
            • zcela bez technologie aj.
            Žádná položka není vyplněna
            Zaniklý
            • pila
            1930 mlýn a pila
            • náhon
            Popis
            Popis
            Typvodní kolo na vrchní vodu
            StavZaniklý
            Výrobce
            Popis1930: 2 kola na svrchní vodu
            1) hltnost 0,089 m3/s, spád 3,4 m, výkon 2,52 HP
            2) hltnost 0,079 m3/s, spád 3,5 m, výkon 2,4 HP
            Žádná položka není vyplněna
            Historické technologické prvky
            AutorMinisterstvo financí
            NázevSeznam a mapa vodních děl RČS
            Rok vydání1932
            Místo vydáníPraha
            Další upřesněnísešit 06 (Chomutov), s. 31
            Odkaz
            Datum citace internetového zdroje
            AutorMinisterstvo financí
            NázevSeznam a mapa vodních děl RČS
            Rok vydání1932
            Místo vydáníPraha
            Další upřesněnísešit 06 (Chomutov), s. 31
            Odkaz
            Datum citace internetového zdroje
            Autorkol.
            NázevTajemství řeky Střely
            Rok vydání2017
            Místo vydáníPlzeň
            Další upřesněnís. 31
            Odkaz
            Datum citace internetového zdroje

            Žádná položka není vyplněna

            Historické mapy

            Plány - stavební a konstrukční

            Historické fotografie a pohlednice

            Současné fotografie - exteriér

            Současné fotografie - exteriér - detaily stavebních prvků

            Současné fotografie - vodní dílo

            Vytvořeno

            5.11.2012 19:02 uživatelem krulis2006 (Jan Kruliš)

            Majitel nemovitosti

            Není vyplněn

            Spoluautoři

            Uživatel Poslední změna
            Rudolf (Rudolf Šimek) 31.5.2022 19:52
            doxa (Jan Škoda) 10.5.2024 21:25
            kytaras (Tomáš Kučera) 27.6.2021 10:41