Kněžské děti a mlynářova kráva,
když se povedou, jsou dobrý dobytek.
(německé přísloví)

Nový, Dobřískovský, Jílkův mlýn

Nový, Dobřískovský, Jílkův mlýn
114
Chrást
330 03
Plzeň-město
Chrást u Plzně
49° 47' 50.5'', 13° 30' 6.0''
Mlýn bez funkčního vodního motoru
Jílkův mlýn postavený údajně v roce 1839 (ve skutečnosti ale až 1866) mlynářem Váchou, radikálně přestavěný 1915 Jaroslavem Jílkem podle návrhu významného architekta Oldřicha Starého.
Klabava
103362
nepřístupný

Obecná historie:

Mlýn při náhonu na levém břehu Klabavy byl postaven někdy po roce 1839, od roku 1875 patřil rodině Jílků, k roku 1930 jej vlastnil Jaroslav Jílek a byl vybaven Francisovou turbínou o výkonu 12,15 HP. Areál mlýna je od roku 2008 památkově chráněný – ochrana se vztahuje na náhon a odpadní kanál o celkové délce 200 metrů (jez stával asi 75 metrů pod ústím odpadního kanálu Semlerovy lopatárny), původní obytnou budovu s mlýnicí a sýpkou (parcela 548/2), elektrárnu (parcela 543 a 549) přistavěnou k východní stěně mlýnice na místě dřevěného kola, které nahradila turbína pravděpodobně před rokem 1930, a na vilu čp. 114, postavenou v roce 1920. 


Historie mlýna obsahuje událost z období:

Podle některých pramenů založen 1839 (ve skutečnosti ale až později)

Události
  • První písemná zmínka o existenci vodního díla

1866 po smrti mlynáře Čechury z Martínkova mlýna si jeho vdova vzala mlynáře Josefa Váchu, který vystavěl nový mlýn v tzv. Dobřískově.

1875 mlýn prodán mlynáři Vojtěchu Jílkovi z Božkova 

Události
  • Vznik mlynářské živnosti
Hospodářský typ mlýna
Smíšený

1915 mlýn přebírá syn Jaroslav Jílek, zahajuje velkorysou přestavbu pod vedením architekta Oldřicha Starého

1920 dokončena secesní vila u mlýna

1930 domácí elektrárna a mlýn, majitel Jaroslav Jílek

Hospodářský typ mlýna
Smíšený

synové mlynáře se zapojují do odboje, postupně zatčena celá rodina

do mlýna dosazen Treuhänder Richard Speizer (Spazier ?)

23. února 1945 popraven syn Vlastimil Jílek

květen 1945 syn Jaroslav Jílek propuštěn z vězení, avšak 19.5. umírá na tuberkulózu

2002 povodní stržena stodola a část kůlen

v držení rodiny Holečkovy, od roku 2006 mlýn citlivě rekonstruován

19. 11. 2008 prohlášen kulturní památkou

Události
  • Zaznamenání katastrofy (požár, povodeň, zranění, úmrtí, aj.)

Příjmení mlynářů působících na mlýně:

  • Vácha
  • Jílek
  • Speizer
  • Spazier

Historie mlýna také obsahuje:

1866-1875 Josef Vácha

1875-1915 Vojtěch Jílek

1915-1942 Jarodlav Jílek

1942-1945 Richard Speizer (Spazier)

1945- Jaroslav Jílek

 

Mlýn je vyobrazen na:

Předměty spojené s osobou mlynáře a provozu:

    dochován bez větších přestaveb
    05 2012
      venkovský
      mlýn na malé řece (1000 – 7000 l/s)
      mlýnice a dům samostatné budovy
      • raná moderna do roku 1920
      zděná
      jednopatrový
      Významná prefunkcionalistická architektura dle návrhu arch. Oldřicha Starého, zejména vila s rozměrnou halou. V přízemí vily byly kanceláře, v patře byt mlynáře.
      V areálu dále mlýnice se starou obytnou budovou, sýpka, elektrárna a řada hospodářských budov.
      Areál mlýna, z části s dochovaným původním technickým vybavením, dokládá rozvoj hospodářského podnikání po polovině 19. století v regionu. Hodnotná stavba obytné budovy, typově vycházející z vilové architektury.
      Vila z r. 1920 - individualistická moderna nesoucí řadu prvků doznívající secese a nastupujícího kubismu. Ostatní části (mlýnice s náhonem, stodola, chlévy s kolnou) z 2. pol. 19. stol. Elektrárna včetně přilehlých upravených prostor v mlýnici z r. 1940.
      Soubor tvoří:
      - vila
      - stará budova s mlýnicí a vybavením:
      původní pec v chodbě staré obytné budovy
      - sýpka
      - elektrárna s vybavením:
      - náhon s odpadním kanálem
      - chlévy
      - vjezdová vrata
      Areál Jílkova mlýna tvoří budovy seskupené kolem obdélného, na severu se rozšiřujícího dvora, vně po východní straně je situován cca 200 m dlouhý náhon. Na severní straně dvora stojí patrový obytný objekt - vila čp. 114, východní stranu dvora tvoří stará obytná budova s mlýnicí na obdélném půdorysu s navazující sýpkou. K východní straně mlýnice přiléhá objekt elektrárny. Západní stranu dvora uzavírají zděné obdélné chlévy.
      Vstup do dvora je od severovýchodu vjezdovými vraty.
      Vila čp. 114
      Nepodsklepený patrový objekt na členitém, zhruba obdélném půdoryse, s podélnou osou ve směru východ - západ je umístěný na severní straně dvora, vpravo od vstupní brány.
      V době své výstavby to byla moderní, ale i romantická dominanta celého hospodářství.
      Střecha je mansardová s valbou, spodní část změkčená námětky dosahuje do asi třetiny výšky střechy.
      Vnější, severní průčelí zvýrazňuje vlevo od středu umístěný mělký jednoosý rizalit, jeho průčelí zasahuje do úrovně římsy mansardy a vrcholí zvlněným, orámovaným štítem, na ploškách oplechované atiky s koulemi, hřeben sedlového zastřešení ve výši hřebene střechy celého domu. Na soklu ze stylizované omítky obklad z bílých cihel. Nad profilovanou parapetní římsou v ose vyniká mohutné okno schodišťového prostoru s půlkruhovým nadpražím, svisle rozčleněné na tři části pilířky, výplně tvoří leptané sklo s květinovým motivem. Zdvojené pilastry na vysokých patkách na nároží rizalitu nesou širokou hlavní římsu se třemi štukovými kruhy. Pod římsou jev šíři okna prohloubená obdélná část, v ose okenních sloupků tu vyčnívají dva polosloupky s prohlubeninami a hlavicí. V úrovni štítu je skoro trojúhelné okno dělené dvěma svislými zděnými sloupky a vrcholící konkávně prohnutým nadpražím, které sleduje štít. Okno je lemované zvlněnou šambránou, nad ním je květinový štukový koš.
      Vlevo od rizalitu je jedna okenní osa, v přízemí i v patře s obdélným, členěným oknem (úzké okénko v přízemi u rizalitu), vpravo od rizalitu dvě okenní osy, vlevo se jedná o dvě sdružená úzká a vysoká okénka, vpravo běžná okna. Plochu této základní části průčelí člení pilastry různé výšky, včetně jejich zdvojení i zaoblení, struktura povrchu a lemování oken.
      Přízemní okna v parapetu s hrubou omítkou, postranní sloupky sjemným vodorovným rýhováním, nad oknem rovné nadpraží a profilovaný půlkruh.
      V severozápadním rohu vyčnívá z budovy úhlopříčně rizalit, jakási obdélníková věž.
      Nad hlavní římsou, která je v úrovni římsy mansardy, se tyčí věžička střechy (dlátko s námětky a kovovými atributy). Rizalit navazuje v patře na hlavní průčelí malou lodžií s betonovými sloupky zábradlí, přístupnou prosklenými dveřmi v rizalitu. Každá ze tří stěn rizalitu má po jedné okenní ose. V přízemí tvoří povrch bílé, režné zdivo, nad profilovanou kordónovou římsou jsou nárožní oblé pilastry, obdélná okna patra i nízká polopatra, umístěná pod hlavní římsoujsou lemována profilováním, v parapetech průčelní stěny jsou štukové květinové koše.
      Navazující západní průčelí má jednu, nesymetricky umístěnou okenní osu.
      Průčelí východní obsahuje tři okenní osy. Členěný povrch odpovídá již popsanému u severního průčelí.
      Dvorní (jižní) průčelí má v ose mělký trojosý rizalit, který však ve své pravé části - ve dvou osách vyčnívá o cca 1,5 m více do dvora. Přízemi této části rizalitu, plato přístupné z úrovně dvora po několika stupních širokého, betonového schodiště se zaoblenými rohy, tvoří před hlavním vstupem do domu krytý prostor, jakési loubí. Tři pilíře s půlkruhově klenutými oblouky v čele, do úrovně paty s bílým, režným zdivém, nad záklenky segmentové šambrány, ve cviklech kruhové štuky. Je vyznačena kordónová a průběžná podokenní římsa.
      Dvě obdélná okna v patře se štukovými šambránami, nárožní pilastry se stylizovanou hlavicí.
      Pod vrcholovou římsou, která je v úrovni římsy mansardy, jsou drobné, lemované otvory.
      Zastřešení tvoří valbu. Část rizalitu vlevo má v přízemí verandu nesenou dřevěnou zdobnou konstrukcí, zakrytou puhovou střechou. V úrovni patra obdélné, lemované okno, průběžné lemování pod hlavní římsou a mansardová střecha přecházejí ze základní hmoty objektu.
      Vpravo od rizalitu je jedna okenní osa, v přízemí trojdílné okno, v patře vystupuje lodžie krytá pultovou střechou, nosnou konstrukci Noří dřevěné profilované sloupky a oblouky, třikrát se opakuje motiv oblouku vstupu, i když v jiné podobě, vstup na lodžii rozměrnými balkónovými dveřmi. Levé nároží tohoto průčelí tvoři v úrovni patra dvě okenní osy, v té vzdálenější jsou dveře na terasu mezi vilou a navazujícími stájemi.
      Interiér: Přízemí vily sloužilo spíše jako prostory provozní, tj. kuchyně, chodba, hala, kancelář mlynáře a sociální zařízení. Podlahy přízemí jsou opatřeny keramickými dlaždicemi.
      Téměř všechny dveře i zárubně v interiérech jsou zdobeny secesními motivy, zvýrazněnými zlacením. Pozornost si mimo jiné zaslouží leptané skleněné výplně oken na schodišti s rostlinnými motivy a dvoukřídlých vstupních dveří do haly se zjednodušeným pohledem na původní mlýn s vodním kolem.
      Schodiště je trojramenné, mezipodesty zdobeny dvoubarevnou dlažbou. Zábradlí dřevěné, zdobené. V hale nad schodištěm je dřevěný kazetový strop se secesními osvětlovacími tělesy.
      V patře je obývací pokoj, pánský pokoj - pracovna, ložnice, pokoje pro hosty a koupelna. Podlahy parketové, některé prostory doplněny na stěnách a na stropě štukovou výzdobou.
      Zdivo objektu je cihelné, krytina pálená - drážkové tašky. Všechna okna včetně rámů, dveře a zárubně i zábradlí jsou ze dřeva, opatřena bílým nátěrem. Dřevěné jsou všechny konstrukce krovové a většina stropních konstrukcí.
      2. Stará obytná budova s mlýnicí
      Vlevo od vstupní brány je původní, pravděpodobně nejstarší, budova mlýna, sestávající z obytné části a mlýnice. Na ni navazuje dvoupodlažní sýpka, která uzavírá východní stranu dvora.
      Dvorní (západní) průčelí budovy má pět okenních os. V patře v líci umístěná, na kříž dělená osmitabulková okna s lehkým segmentem v nadpraží, v přízemí jsou ve druhé a čtvrté ose vstupní dveře - dvoukřídlé, dřevěné. Plochu člení nevýrazná kordónová římsa, střecha sedlová krytá drážkovými taškami.
      Severní stěna se štítem, orientovaná vlevo od brány, má v přízemí tři, v patře a ve štítě dvě okenní osy s obdélnými okny v líci, průčelí rozčleněno římsami. Před průčelím je odkryt otvor do klenutého sklípku.
      Východní stěna, k níž je přistavěna elektrárna, má po pravé straně dvě okenní osy.
      Betonovou plochu zčásti kryje novodobá dřevěná pavlač v úrovni patra, na kterou je možné vstoupit dveřmi ze šalandy, nebo po jednoramenném dřevěném schodnicovém schodišti.
      Fasáda je bez ozdob, vodorovně dělená kordonovou římsou. Okapní římsaje profilovaná.
      Obytná část sestává ze dvou obytných místností a chodby s původní pecí.
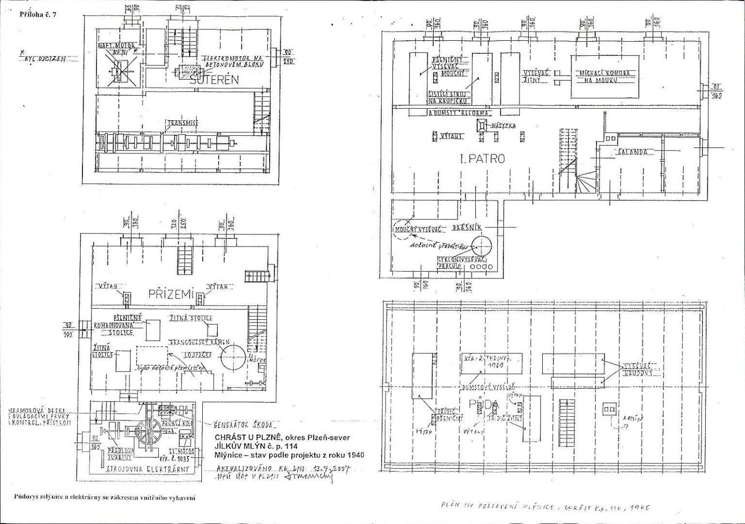
      V jižní části přízemí byla při přestavbě v roce 1940 prohloubena podlaha přibližně o 1 m pod úroveň dvora a zvýšena původní podlaha přízemi. Vznikl tak suterén, do kterého byly umístěny transmise a elektromotor pro pohon mlýnských strojů. Do zvýšeného přízemí byly umístěny těžké mlýnské stroje, pšeničná, dvě žitné stolice, loupačka a „francouzský kámen“. Dřevěné násypky strojů procházejí do patra, kam byly také umístěny vysévače (pšeničný a žitný), čistící stroj a míchací komora na mouku. V severovýchodním rohu patra je tzv. šalanda, sestávající ze dvou místností, oddělených od prostoru mlýnice lehkou příčkou.
      V patře nad strojovnou elektrárny je umístěn moučný vysévač a vysávač prachu.
      Lehké stroje byly také umístěny do půdního prostoru: třídič pšeničný, žitný a vysévače (dunstový a hrudkový). Vertikální doprava je zajištěna obvyklými kapsovými dopravníky v dřevěných šachtách.
      Všechna schodiště jsou provedena jako schodnicová, dřevěná. Stropní konstrukce a krovy jsou dřevěné, střešní krytina pálená, korunová z bobrovek.
      3. Sýpka
      Na budovu mlýnice navazuje patrová sýpka s půdou, jež má ve dvorním, západním průčelí v patře dvě okenní osy, s jednoduchými okny stejnými jako na navazujícím domě, v přízemí dva vstupy s dřevěnými dvoukřídlými dveřmi, vpravo sjednoduchým kamenným ostěním.
      Ve vnějším, východním průčelí jsou tři drobnější okenní otvory, opatřené mřížemi.
      V místě, kde sýpka navazuje na mlýnici, prochází napříč budovou průchod k elektrárně, na konci uzavřený také dřevěnými dvoukřídlými dveřmi. Podobnými dveřmi je možné z průchodu vstoupit i do prostoru mlýnice.
      Stropy a krov jsou dřevěné. Sedlová střecha s bobrovkami je vlastně pokračováním střechy na mlýnici. Schodiště v sýpce jednoramenné, schodnicové, dřevěné.
      4. Elektrárna
      Elektrárna je objekt na obdélníkovém půdorysu, přistavěný z vnější strany k východní stěně mlýnice v místě, kde dříve bývalo dřevěné kolo.
      Na mohutně dimenzovaném, železobetonovém základu, jehož součástí je i kašna turbiny, je z cihel vyzděno přízemí - strojovna a patro, kryté téměř plochou střechou. Krytina - pozinkovaný plech. Strop v přízemí je železobetonový, nad patrem dřevěný, stejně jako nosná konstrukce střechy.
      Vstup do strojovny umožňuje betonová lávka nad náhonem.Vně strojovny, těsně pod jeho střechou, je hlavní stavidlový uzávěr.
      V železobetonové kašně pod podlahou strojovny je umístěna vertikální kašnová turbina Francis. Její hřídel prochází do prostoru strojovny, kde je zavěšen v axiálním ložisku, neseném dvěma ocelovými nosníky profilu I. Ty jsou na jednom konci zazděny, druhý je podepřen betonovým sloupem.
      Do betonových základů jsou uchycena i všechna další ložiska - u přechodového hřídele i rovnoběžně vedené transmise, podobně i mechanizmus regulace. Stejné uložení bylo voleno i pro elektrické stroje v prostoru strojovny. Převod na předlohu je řešen rozměrnými kuželovými ozubenými koly.
      Průchod do mlýnice je také možný z plošiny umístěné cca 1 m nad podlahou strojovny a odtud přístupné po několika dřevěných schodech. Z plošiny je také dosažitelná rozvodna a ovládací deska.
      Vnitřní prostor strojovny je osvětlován dvěma okny, umístěnými v ose severní a jižní.
      Okna jsou kovová, dělená do malých obdélníkových tabulek, horní třetina je vyklápěcí.
      Místnost v patře je osvětlována dvěma okny ve východní stěně. Okna jsou jednoduchá, dvoukřídlá, dřevěná.
      5. Náhon a odpadní kanál
      K areálu mlýna patří náhon a odpadní kanál celkové délky asi 200 m. Náhon je mělký, šířky 2 - 3 m, zčásti vyzděný z lomového kamene. Cca 15 m před vtokem do elektrárny vede přes náhon mostek, jehož oblouk o rozpětí kolem 4 m je klenut z bílých cihel.
      6. Chlévy
      Ze západní strany je dvůr uzavřen chlévy, na které na jižní straně ještě navazovaly kolny, stržené povodní po v srpnu r. 2002. Chlévy jsou zděné, přízemní s polopatrem, na obdélném půdorysu, kryté sedlovou střechou s taškami bobrovkami. Ve dvorním, západním průčelí jsou okna, vstupní dveře i podávači otvory do polopatra nepravidelně rozmístěny.
      Zachována jsou dvě kamenná ostění dveří.
      Ve vnějším průčelí jsou pouze větrací okénka. V omítce chlévů je po celém obvodu jemná římsa, cca 0,75 m pod okrajem střechy a vrcholová.
      Zdivo je smíšené, nad terénem s převahou lomového kamene. Interiéry zaklenuté segmentovými klenbami do traverz.
      7. Vrata
      Vstupní vrata do dvora v severní části jsou kovová, dvoukřídlá, spodní rámy s plnou výplní, horní část tyčová, se zdobením, v kvalitním návrhu i provedení, patrně ze stejné doby jako vila. Pravé křídlo vrat v současnosti leží před severním průčelím staré obytné budovy s mlýnicí.
      Slohové a časové určení: Vila pochází z roku 1920. Budova je zčásti postavena na základech staršího domu. Její architektonické pojetí lze označit za individualistickou modernu nesoucí řadu prvků doznívající secese a nastupujícího kubismu. V blízkém okolí (Nová Huť) lze nalézt další stavby shodného autorského rukopisu. Ostatní části (mlýnice s náhonem, stodola, chlévy s kolnou) jsou z 2. poloviny 19. století. Elektrárna včetně přilehlých upravených prostor v mlýnici z roku 1940.
      areál mlýna, z části s dochovaným původním technickým vybavením, dokládá rozvoj hospodářského podnikání po polovině 19. století v regionu. Hodnotná stavba obytné budovy, typově vycházející z vilové architektury. Navržený areál je příkladem mlýna nově postaveného až ve 2. polovině 19.století, s ojediněle dochovanými jednotlivými budovami, prakticky ve stavu po postavení. Ačkoli mlýn již není mnoho let v provozu, jeho zařízení je stále kompletní vč. turbiny a dvou pecí, ve stavu po poslední modernizaci ve 30. letech. Budovy mlýna nebyly dosud postiženy degradujícími stavebními úpravami, demolicemi nebo nepříznivou změnou okolního prostředí. Nový obytný dům („vila“) byl postaven podle nadprůměrně kvalitního návrhu, byl velmi dobře začleněn mezi starší budovy a dal mlýnu osobitý nezaměnitelný výraz. Interiéry obytného domu se vyznačují kvalitním uměleckým řemeslem a jsou ve zcela autentickém stavu.
      Autora návrhu se zatím nepodařilo doložit archivní dokumentací, s velikou pravděpodobností se jedná o dílo významného českého architekta O. Starého, který v době po roce 1910 působil na Plzeňsku a přímo v obci Chrástu Plzně bylo kolem roku 1920 podle jeho projektů realizováno několik rodinných domů a vil v obdobném slohu jako obytný dům v Jílkově mlýně.
      Areál Nového neboli Jílkova mlýna /zvaného také Dobřískov /, nalézá se na levém břehu řeky Klabav, přibližně 3 km nad jejím ústím do Berounky, na severním okraji obce. Jednotlivé budovy jsou uspořádány na téměř obdélném půdorysu, mírně se rozšiřujícím k severu, podél náhonu 200 m dlouhého. Tvoří téměř uzavřený dvůr. Přístupová cesta odbočuje ze silnice Chrást - Smědčice a míří ke dvoru proti proudu řeky, od severu. Vpravo od vstupní brány se nachází moderní dominanta celého hospodářství - vila z r. 1920. Je postavena na nepravidelném půdorysu, který má nejblíže k obdélníku. Architektonické pojetí lze označit za individualistickou modernu, nesoucí řadu prvků doznívající secese a nastupujícího kubismu. V blízkém okolí /Nová Huť/ lze nalézt i další stavby shodného autorského rukopisu Budova je zčásti postavena na základech starého domu z 1. pol. 19. stol. Není podsklepena má dvě nadzemní podlaží. Zdivo novostavby je převážně cihlové. Fasáda v přízemí provedena z režného zdiva /bílé cihly/, zbytek v jednobarevném břízolitu. Je bohatě členěna /římsy, náznaky pilastru, polosloupy ve štítě/, vyznačuje se množstvím zdobných prvků. Okna jsou orámována, zvýrazněny parapety Ze severního průčelí vybíhá mělký rizalit, prostupující římsou, ukončený tvarovaným štítem. Rozměrné obloukové okno v ose rizalitu, rozdělené sloupky do třech svislých nestejně vysokých pásů osvětluje halu se schodištěm. Okénka ve štítu vedou do půdního prostoru. Průčelí dále obsahuje vlevo od rizalitu jednu, vpravo pak dvě okenní osy. V severozápadním rohu z budovy vybíhá úhlopříčně rizalit, též prostupující římsou, zakončen jehlancovitou střechou. Tvoří jakousi obdélníkovou věž, navazující na severní průčelí malou lodžií. Vstup na ni je možný prosklenými dveřmi z patra. Každá stěna rizalitu má po jedné okenní ose, podobně jako fasáda domu orientovaná západně. Naproti tomu průčelí východní obsahuje 3 okenní osy. Dvorní průčelí / jižní / má opět v ose mělký rizalit, který ale v pravé části, cca ve 2/3 šířky pokračuje do dvora v hloubce asi 1,5 m, Za dvěma klenutými oblouky je před hlavním vstupem do domu vytvořen krytý prostor - „loubí".
      V úrovni přízemí pokračuje vlevo od hlubší části rizalitu, zakryté pultovou střechou, nesenou dřevěnou konstrukcí. Ta je pojata tak, aby opakovala motiv oblouku, včetně ozdob. Vpravo na rizalit v úrovni patra navazuje lodžie, krytá pultovou střechou. Nosná konstrukce střechy je dřevěná, opět třikrát opakuje motiv oblouku v přízemí, i když v trochu odlišné podobě. Rizalit má tři okenní osy, v nichž dvě se nacházejí na jeho hlubší části. Tyto okenní osy jsou shodné s osami oblouků v přízemí. Vlevo od rizalitu je možné v úrovni patra nalézt dvě okenní osy /v té vzdálenější jsou dveře na terasu mezi vilou a navazujícími stájemi/. Vpravo od rizalitu zbývá ještě jedna okenní osa, v níž jsou na rozdíl od všech ostatních dvojdílných oken umístěna okna trojdílná. Všechna okna včetně rámů, dveří, zárubní, zábradlí jsou ze dřeva, opatřena bílým nátěrem. Z téhož materiálu jsou všechny krovové a většina stropních konstrukcí. Střecha je mansardová, přičemž spodní část představuje asi třetinu výšky střechy. Krytina pálená - drážkovky. Přízemí vily sloužilo spíše jako plocha provozní, - tj. kuchyně, chodba, hala, kancelář mlynáře /dodnes s původním inventářem/, sociální zařízení. Podlahy přízemí jsou opatřeny keramickými dlaždicemi s výjimkou haly a schodiště, kde byl použit bílý a růžový leštěný mramor. Téměř všechny dveře i zárubně v interiérech jsou zdobeny secesními motivy, zvýrazněnými zlacením. Pozornost si zaslouží mj. i leptané skleněné výplně oken na schodišti /rostlinné motivy/ a dvoukřídlých vstupních dveří do haly /zjednodušený pohled na původní mlýn s vodním kolem/. Schodiště je trojramenné, mezipodesty zdobeny dvoubarevnými mozaikami z leštěného mramoru. Zábradlí dřevěné, zdobené. V hale nad schodištěm j e dřevěný kazetový strop se secesními osvětlovacími tělesy. V patře je obývací pokoj, pánský pokoj /pracovna/, ložnice, pokoje pro hosty a koupelna. Podlahy kryty parketami, v pokojích z větší části zachován i původní, často secesní inventář, vč. válcových kachlových kamen.
      Vlevo od vstupní brány je původní, pravděpodobně nejstarší budova mlýna, sestávající z obytné části a mlýnice. Na ni navazuje dvoupodlažní sýpka, která uzavírá východní stranu dvora. Dvorní průčelí budovy má 5 okenních os. V přízemí jsou ve dvou osách vstupní dveře /dvojkřídlé, dřevěné /. Severní stěna se štítem orientovaná vně dvora má v přízemí 3 v patře dvě a ve štítě dvě okenní osy. Východní stěna, k níž je přistavěna elektrárna, má dvě okenní osy. V úrovni patra se nachází dřevěná pavlač, na kterou je možné vstoupit dveřmi ze šalandy nebo po jednoramenném dřevěném schodnicovém schodišti ze zahrady. Fasáda je bez ozdob, vodorovně dělená kordonovou římsou. Podokapní římsa profilovaná. Obytná část sestává ze dvou obytných místností a chodby s původní pecí. Inventář z velké části původní, zachovalý, /malované skříně, truhly, nádobí.../ V jižní části přízemí byla při přestavbě v r. 1940 prohloubena podlaha přibližně o 1 m pod úroveň dvora a byla zvýšena původní podlaha přízemí. Vznikl tak suterén, do kterého byly umístěny transmise, elektromotor pro pohon mlýnských strojů, vč. rozvodné a ovládací desky. V zvláštní místnosti s předsíňkou byl umístěn stabilní naftový motor Škoda /z r. 1932/. Výfukové potrubí je vedeno po vnější stěně souběžně s okapem a je ukončeno nad římsou. Do zvýšeného přízemí byly umístěny těžké mlýnské stroje - tj. pšeničná a dvě žitné stolice a "francouzský kámen". Dřevěné násypky strojů procházejí do patra, kam byly také umístěny vysévače /pšeničný, žitný/, čistící stroj a míchací komora na mouku. V severovýchodním rohu patra je tzv. šalanda, sestávající ze dvou místností, oddělených od prostoru mlýnice lehkou příčkou. Lehké stroje byly umístěny také do půdního prostoru: třídič pšeničný, žitný a vysévače. Vertikální doprava zajištěna obvyklými kapsovými dopravníky v dřevěných šachtách. Všechna schodiště provedena jako schodnicová, dřevěná. Stropní konstrukce a krovy jsou dřevěné, střešní krytina pálená, je provedena z bobrovek /korunové/. Střecha sedlová. Všechna okna jsou také dřevěná, dvojkřídlá. Každé křídlo děleno vodorovně do 4 polí. V obytné části jsou okna dvojitá, jinak jednoduchá. Jsou /podobně i dveře/ mořena do tmavého odstínu.
      Na budovu mlýnice navazuje sýpka /přízemí, patro, půda/, jež má ve stěně, orientované do dvora, podobně i na vnější, po 3 okenních osách. Do přízemí vedou ze dvora dvoje dveře, dvoukřídlé dřevěné v kamenném ostění. V místě , kde sýpka navazuje na mlýnici, prochází napříč budovou průchod k elektrárně, na konci uzavřený dřevěnými dvoukřídlými dveřmi. Podobnými dveřmi je možné z průchodu vstoupit i do prostoru mlýnice . Strop, krov i okna jsou ze dřeva . Okna jsou jednoduchá, dvoukřídlá, vodorovně dělená do 4 polí. Střecha sedlová, krytá bobrovkami, je vlastně pokračováním střechy na mlýnici. V okenních otvorech na vnější stěně jsou navíc kované mříže. Schodiště v sýpce jsou také jednoramenná, schodnicová, dřevěná.
      Elektrárna je objekt na obdélníkovém půdorysu, přistavěný k východní stěně mlýnice na místě, kde dříve bývalo vodní kolo.
      Na mohutně dimenzovaném, železobetonovém základu, jehož součástí je i kašna turbiny, je z cihel vyzděno přízemí - strojovna a patro, kryté téměř plochou střechou /krytina - pozinkovaný plech/. Strop v přízemí železobetonový, v patře dřevěný - stejně tak i nosná konstrukce střechy. Vstup do strojovny umožňuje betonová lávka nad náhonem. Vně strojovny je také hlavní stavidlový uzávěr, těsně před střechou strojovny. V železobetonové kašně pod podlahou strojovny je umístěna vertikální kašnová turbina Francis. Její hřídel prochází do prostoru strojovny, kde je zavěšen v aksiálním ložisku, neseném dvěma ocelovými nosníky profilu I. Ty jsou na jednom konci zazděny, druhý je podepřen betonovým sloupem. Do betonových základů jsou uchycena i všechna další ložiska - u předlohového hřídele i rovnoběžně vedené transmise, podobně i mechanismus regulace. Stejné uložení bylo voleno i pro elektrické stroje v prostoru strojovny. Převod na předlohu je řešen rozměrnými kuželovými bubnovými koly. Průchod do mlýnice je možný z plošiny umístěné cca 1 m nad podlahou strojovny a přístupné odtud po několika dřevěných schodech. Z plošiny je také dosažitelná rozvodna a ovládací deska. Vnitřní prostor strojovny je osvětlován dvěma okny - v ose severní a jižní stěny. Okna jsou kovová, dělená do malých obdélníkových tabulek, horní třetina je vyklápěcí. Místnost v patře je osvětlována dvěma okny ve východní stěně - jednoduchá, dřevěná, dvoukřídlá.
      Z jihu dvůr uzavírá obdélníková průjezdná stodola, krytá sedlovou střechou. Průjezd je na obou stranách uzavřen dvoukřídlými dřevěnými vraty. Omítky hladké, zcela bez ozdob. Střecha krytá z části bobrovkami, zbytek drážkovky.
      Ze západní strany dvůr uzavřen kolnou a stájemi. V omítce po celém obvodu nevýrazná římsa /cca 0,75 m pod okrajem střechy/.
      Okna i vstupní dveře jsou nepravidelně rozmístěny. Okna jsou dřevěná, jednoduchá, jednokřídlá, dělená vodorovně do dvou polí. Zachována jsou dvě kamenná ostění dveří, část zajímavého portálu vrat /nyní garáž/. Stropy jsou dřevěné, střecha je sedlová, krytá bobrovkami /korunová krytina/. Zdivo posledně jmenovaných objektů i sýpky a mlýnice je smíšené - cihlové s lomovým kamenem.
      Vstupní vrata do dvora jsou kovová, zdobená - kvalitní návrh i provedení, patrně ze stejné doby jako vila. K areálu mlýna patří také náhon a odpadní kanál celkové délky 200 m. Náhon je mělký, šířky 2 - 3 m, z části vyzděný lomovým kamenem. Cca 15 m před vtokem do elektrárny vede přes náhon mostek, jehož oblouk o rozpětí kolem 4 m je klenut z cihel.

      • pavlač, balkón
      • dveře
      • okno
      • umělecké prvky (sochy, malby, reliéfy)
      • vrata, brána
      • topeniště, kamna, pec
      • existující umělecké složení
      transmise, elektromotor včetně rozvodné a ovládací desky
      těžké mlýnské stroje: pšeničná kombinovaná stolice, 2 žitné stolice, loupačka, francouzský kámen, dřevěné násypky strojů procházející do patra, pšeničný vysévač moučný, žitný vysévač, čistící stroj na krupičku, míchací komora na mouku, moučný vysévač, cyklonový vysévač prachu
      lehké stroje: třídič pšeničný, třídič žitný, vysévač dunstový, vysévač hradový; kapsové dopravníky v dřevěných šachtách (5)
      xx
      V jižní části přízemí byla při přestavbě v roce 1940 prohloubena podlaha přibližně o 1 m pod úroveň dvora a zvýšena původní podlaha přízemi. Vznikl tak suterén, do kterého byly umístěny transmise a elektromotor pro pohon mlýnských strojů. Do zvýšeného přízemí byly umístěny těžké mlýnské stroje, pšeničná, dvě žitné stolice, loupačka a „francouzský kámen“. Dřevěné násypky strojů procházejí do patra, kam byly také umístěny vysévače (pšeničný a žitný), čistící stroj a míchací komora na mouku. V severovýchodním rohu patra je tzv. šalanda, sestávající ze dvou místností, oddělených od prostoru mlýnice lehkou příčkou.
      V patře nad strojovnou elektrárny je umístěn moučný vysévač a vysávač prachu.
      Lehké stroje byly také umístěny do půdního prostoru: třídič pšeničný, žitný a vysévače (dumstový a hrudkový). Vertikální doprava je zajištěna obvyklými kapsovými dopravníky v dřevěných šachtách.
      Žádná položka není vyplněna
      Zaniklý
      • výroba elektrické energie
      1930 elektrárna pro vlastní potřebu
      - elektrárna s vybavením:
      vertikální kašnová turbina Francis, generátor Škoda, elektrický motor
      Elektrárna je objekt na obdélníkovém půdorysu, přistavěný z vnější strany k východní stěně mlýnice v místě, kde dříve bývalo dřevěné kolo.
      Na mohutně dimenzovaném, železobetonovém základu, jehož součástí je i kašna turbiny, je z cihel vyzděno přízemí - strojovna a patro, kryté téměř plochou střechou. Krytina - pozinkovaný plech. Strop v přízemí je železobetonový, nad patrem dřevěný, stejně jako nosná konstrukce střechy.
      Vstup do strojovny umožňuje betonová lávka nad náhonem. Vně strojovny, těsně pod jeho střechou, je hlavní stavidlový uzávěr.
      V železobetonové kašně pod podlahou strojovny je umístěna vertikální kašnová turbina Francis. Její hřídel prochází do prostoru strojovny, kde je zavěšen v axiálním ložisku, neseném dvěma ocelovými nosníky profilu I. Ty jsou na jednom konci zazděny, druhý je podepřen betonovým sloupem.
      Do betonových základů jsou uchycena i všechna další ložiska - u přechodového hřídele i rovnoběžně vedené transmise, podobně i mechanizmus regulace. Stejné uložení bylo voleno i pro elektrické stroje v prostoru strojovny. Převod na předlohu je řešen rozměrnými kuželovými ozubenými koly.
      Průchod do mlýnice je také možný z plošiny umístěné cca 1 m nad podlahou strojovny a odtud přístupné po několika dřevěných schodech. Z plošiny je také dosažitelná rozvodna a ovládací deska.
      Vnitřní prostor strojovny je osvětlován dvěma okny, umístěnými v ose severní a jižní.
      Okna jsou kovová, dělená do malých obdélníkových tabulek, horní třetina je vyklápěcí.
      • jez
      • náhon
      • odtokový kanál
      • most, propustek
      Jez 75 m pod ústím odpadního kanálu hamru, náhon dlouhý cca 200 m.
      K areálu mlýna patří náhon a odpadní kanál celkové délky asi 200 m. Náhon je mělký, šířky 2 - 3 m, zčásti vyzděný z lomového kamene. Cca 15 m před vtokem do elektrárny vede přes náhon mostek, jehož oblouk o rozpětí kolem 4 m je klenut z bílých cihel.
      Popis
      Popis
      Typturbína Francisova
      StavNezjištěn
      Výrobce
      Popis1930: 1 turbína Francis, hltnost 1 m3/s, spád 1,216 m, výkon 12,15 HP
      V železobetonové kašně pod podlahou strojovny je umístěna vertikální kašnová turbina Francis. Její hřídel prochází do prostoru strojovny, kde je zavěšen v axiálním ložisku, neseném dvěma ocelovými nosníky profilu I. Ty jsou na jednom konci zazděny, druhý je podepřen betonovým sloupem.
      Typelektrický motor
      StavDochovaný
      Popis
      Typelektrický motor
      StavDochovaný
      Popis
      Typsynchronní alternátor
      StavDochovaný
      VýrobceŠkoda
      Popis
      Typnaftový motor
      StavZaniklý
      PopisV zvláštní místnosti s předsíňkou byl umístěn stabilní naftový motor Škoda /z r. 1932/. Výfukové potrubí je vedeno po vnější stěně souběžně s okapem a je ukončeno nad římsou.
      V nedávné době byl odcizen.
      Historické technologické prvky
      • transmisní hřídele s řemenicemi (výrobek průmyslový i řemeslný)
      • čistírenský vysévač | Počet:
      • moučný vysévač | Počet:
      • předvysévač | Počet:
        • AutorMinisterstvo financí
          NázevSeznam a mapa vodních děl RČS
          Rok vydání1932
          Místo vydáníPraha
          Další upřesněnísešit 11 (Plzeň), s. 38
          Odkaz
          Datum citace internetového zdroje
          AutorMinisterstvo financí
          NázevSeznam a mapa vodních děl RČS
          Rok vydání1932
          Místo vydáníPraha
          Další upřesněnísešit 11 (Plzeň), s. 38
          Odkaz
          Datum citace internetového zdroje
          AutorTomáš Makaj
          NázevTajemství řeky Klabavy
          Rok vydání2019
          Místo vydáníPlzeň
          Další upřesněnís. 171-172
          Odkaz
          Datum citace internetového zdroje
          AutorVladislava Valchářová
          NázevJílkův mlýn
          Další upřesněníIndustriální topografie
          Odkazhttp://www.industrialnitopografie.cz/karta.php?zaznam=V005298
          Datum citace internetového zdroje02 2025
          AutorNárodní památkový ústav - Památkový katalog
          NázevVodní mlýn Jílkův
          Odkazhttps://www.pamatkovykatalog.cz/vodni-mlyn-jilkuv-18122852
          Datum citace internetového zdroje07 2025

          Žádná položka není vyplněna

          Základní obrázky

          Historické mapy

          Plány - stavební a konstrukční

          Historické fotografie a pohlednice

          Současné fotografie - exteriér

          Současné fotografie - exteriér - detaily stavebních prvků

          Současné fotografie - interiér - detaily stavebních prvků

          Současné fotografie - vodní dílo

          Současné fotografie - technologické vybavení

          Vytvořeno

          7.10.2012 16:51 uživatelem Piskot

          Majitel nemovitosti

          Není vyplněn

          Spoluautoři

          Uživatel Poslední změna
          Rudolf (Rudolf Šimek) 27.2.2017 21:10
          doxa (Jan Škoda) 29.7.2025 20:22