Chci raději pohánět mlýn, než lenivět v rybníce, řekl potok.
(německé přísloví)

Dudákovský mlýn; Tuthakenmühle

Dudákovský mlýn; Tuthakenmühle
35
36
Okrouhlé Hradiště
349 52
Tachov
Okrouhlé Hradiště
49° 51' 39.2'', 13° 2' 2.3''
Mlýniště bez mlýna
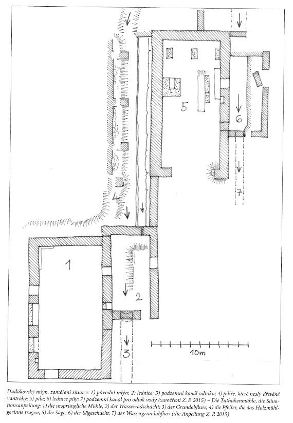
Zříceniny budov velkého mlýna stojí v hlubokém údolí Úterského potoka v zatáčce vedlejší silnice. K objektu mlýna patřila velká budova mlýna s mlýnicí a obytnou budovou, výše postavená menší budova pilnice, v rohu objektu byla postavena další hospodářská budova. Z budov se zachovaly pouze obvodové zdi.
Na velké budově je vidět nově doplňované zdivo. Na dvoře stojí maringotka. Objekt není přístupný.
U mlýna je rozcestník turistických cest.
Samota
Úterský potok
nepřístupný

Obecná historie:

Doložen již k r. 1566 v urbáři z panství Bezdružice, kdy jsou uváděna jména Tuthak Müller, Hlawacz Müller, Mraz Müller (Pramen : "Über Grenzen hinweg", str. 610, Geisenfeld, 1964), odtud Tuthakenmühle, Hlawatschenmühle a Maraßenmühle. Mlýn však v 18. století převzala mnohočetná rodina Röhlingů, která pak po několik století hospodařila na několika okolních mlýnech (Schöppermühle, Altmühle, Kleine Tschischkamühle, Kunstfarbernmühle, Marasenmühle, Schlanzenmühle).


Historie mlýna obsahuje událost z období:

1566 - mlýn  doložen v urbáři z panství Bezdružice, kdy je uváděno jméno Tuthak Müller, (Sylva Šauerová 2014, http://www.zanikleobce.cz/index.php?lang=d&obec=13663)

Události
  • První písemná zmínka o existenci vodního díla
Hospodářský typ mlýna
  • Vrchnostenský

1651 Soupis poddaných dle víry Peter Tuthack (40) s manž. Evou (30)

1654 Berní rula Petr Tuther, mlýn s 1 kolem, bez pozemků

1714 revizitace Berní ruly: Lorenz Tutackh

Mlýn v 18. století převzala mnohočetná rodina Röhlingů, která pak po několik století hospodařila na několika okolních mlýnech, (Sylva Šauerová 2014, http://www.zanikleobce.cz/index.php?lang=d&obec=13663)

1804 soupis činží bezdružického panství: Johann Röhlich, mlýn na středně stálé vodě, 2 moučná kola, 1 pila, 1 stoupa na olej, z mlýna platí roční činži 10 zl. 4 kr. a 36 kr. náhrady za vykrmeného kapouna, odvádí 1 věrtel a 2 žejdlíky pšenice, z pily a olejny dosud neplatil. Vrchnosti zdarma poskytuje několik sáhů falcovaných prken v hodnotě 2 zl. za sáh (?)

Johann Röhlich ml., + manž. Kateřina Schwara, dc. sedláka z Okrouhlého Hradiště

1870 Franz Röhlich, zasazen cejch

poté vykoupili majitelé bezdružického panství hrabata Löwensteinové a zřídili zde pilu

1910 nájemce Johann Funk a pilař Marin Brandl

Události
  • Zánik mlynářské živnosti

1921 nájemce Martin Brandl, pilař Ernst Zucker

V roce 1930 je ve mlýně uváděna pila a šindelka, majitelem  byl Alois Löwenstein. Mlýn měl adresu Okrouhlé Hradiště 36.

údajně zde vládla až do války přátelská nálada k Čechům, čs. vojáci z opevnění sem chodili na pivo

poslední nájemce G.Schaefer, pilař W.Wondra

1946 odsunuti

20.7.1945 pilu převzaly Čs. státní lesy

V 50. letech minulého století mlýn stál, pila zanikla

Příjmení mlynářů působících na mlýně:

  • Tuthak
  • Röhling
  • Dudák
  • Tuthack
  • Röhlich

Historie mlýna také obsahuje:

1566 - Tuthak

1651 Peter Tuthack

1654 Petr Tuther

1714 Lorenz Tutackh

1804 Johann Röhlich

Johann Röhlich ml.

1870 Franz Röhlich, zasazen cejch

1900  hrabata Löwensteinové

1910 nájemce Johann Funk, pilař Martin Brandl

1921 nájemce Martin Brandl, pilař Ernst Zucker

1930 - Alois Löwenstein

-1946 nájemce G.Schaefer, pilař W.Wondra

Mlýn je vyobrazen na:

Předměty spojené s osobou mlynáře a provozu:

    zřícenina
    02 2016
      venkovský
      mlýn na potoku (50 - 1000 l/s)
      Ve velké budově je mlýnice současně s obytnou budovou, nad velkou budovou je menší budova - pouze mlýnice
      • klasicismus do roku 1850
      • 1945 – současnost
      zděná
      Zdivo mlýna, k němuž přiléhá lednice s klenutým kanálem, dochováno do výše 1. patra
      Nelze přesně určit, ze mlýna zbyly jen obvodové zdi.
      Současný majitel začal doplňovat zdivo obytné budovy.
      • okno
        • zcela bez technologie aj.
        Žádná položka není vyplněna
        1654: 1 složení
        Zaniklý
        • pila
        • šindelka
        • olejna
        1804 pila a olejna
        1839 pila severně od mlýna na odbočce náhonu
        po roce 1900 objekty pily rozšířeny
        V roce 1930 byla ve mlýně pila a šindelka.
        20.7.1945 inventář pily:
        1 kompletní katr 420 mm Heiner, Pirna
        1 stroj na výrobu šindele
        1 dynamo na světlo
        1 brousící stroj
        2 cirkulárky
        roční pořez 1000-1200 m3
        pila z objektu nejlépe zachována, budova z lomového kamene, uvnitř novější betonové fundamenty pro uchycení katru
        • náhon
        • jalový žlab
        • odtokový kanál
        • lednice
        1839 náhon veden podzemním kanálem, který vycházel na povrch až za silnicí.
        Nad mlýnem se od náhonu odděloval jalový odtok s přepadem. V terénu je patrné oddělení náhonu k menšímu objektu pily a náhon k většímu objektu je veden podél zdi menší budovy.
        částečně zachována lednice s klenutým kanálem
        Typvodní kolo na vrchní vodu
        StavZaniklý
        Výrobce
        Popis1654: 1 kolo
        1804: 2 moučná kola
        V roce 1930 měl mlýn 2 kola na vrchní vodu, hltnost 0,16/0,2 m3/s, spád 4,3/4,5m, výkon 5,96/6,05 HP.
        Typvodní kolo na vrchní vodu
        StavZaniklý
        Výrobce
        Popis1654: 1 kolo
        1804: 2 moučná kola
        V roce 1930 měl mlýn 2 kola na vrchní vodu, hltnost 0,16/0,2 m3/s, spád 4,3/4,5m, výkon 5,96/6,05 HP.
        Žádná položka není vyplněna
        Historické technologické prvky
        AutorInternet
        NázevZaniklé obce a objekty
        Rok vydání0
        Místo vydání
        Další upřesněníTuthakenmühle (Dudákovský mlýn), Sylva Šauerová
        Odkazhttp://www.zanikleobce.cz/index.php?lang=d&obec=13663
        Datum citace internetového zdroje18.2.2016
        AutorInternet
        NázevZaniklé obce a objekty
        Rok vydání0
        Místo vydání
        Další upřesněníTuthakenmühle (Dudákovský mlýn), Sylva Šauerová
        Odkazhttp://www.zanikleobce.cz/index.php?lang=d&obec=13663
        Datum citace internetového zdroje18.2.2016
        AutorInternet
        Názevnaučná stezka Šipín
        Rok vydání0
        Místo vydání
        Další upřesnění
        Odkazhttp://www.plzenskykraj.kct.cz/nastezky/nssipin.htm
        Datum citace internetového zdroje18.2.2016
        AutorMinisterstvo financí
        NázevSeznam vodních děl a mapy republiky Českolovenské
        Rok vydání1932
        Místo vydání
        Další upřesněníCheb, str. 11
        Odkaz
        Datum citace internetového zdroje
        AutorZdeněk Procházka
        NázevCestami krajánků aneb putování po mlýnech a vodních provozech na Tachovsku a Stříbrsku
        Rok vydání2017
        Místo vydáníDomažlice
        Další upřesněníDíl. II. - levostranné přítoky Mže, s. 217-222

        Žádná položka není vyplněna

        Základní obrázky

        Historické mapy

        Plány - stavební a konstrukční

        Historické fotografie a pohlednice

        Současné fotografie - exteriér

        Současné fotografie - exteriér - detaily stavebních prvků

        Současné fotografie - interiér

        Současné fotografie - interiér - detaily stavebních prvků

        Současné fotografie - vodní dílo

        Ostatní

        Vytvořeno

        18.2.2016 22:21 uživatelem Helena Špůrová

        Majitel nemovitosti

        Není vyplněn

        Spoluautoři

        Uživatel Poslední změna
        Rudolf (Rudolf Šimek) 19.2.2016 21:35
        doxa (Jan Škoda) 19.2.2026 18:53