Věří, že každý mlynář nosí kardinálský klobouk.
(německé rčení)

Nadostrovecký, Zimův mlýn, Mlýn hořejší Podostrovský

Nadostrovecký, Zimův mlýn, Mlýn hořejší Podostrovský
12
Ostrovec-Lhotka
338 08
Rokycany
Ostrovec u Terešova
49° 55' 9.5'', 13° 44' 4.9''
Mlýn bez funkčního vodního motoru
Roubená poschoďová stavba z r. 1652. V r. 1772 si vzal vdovu Annu po mlynáři Janu Desortovi mlynář František Sýkora. Od r. 1874 mlynář František Zima.
Pod Ostrovcem
Zbirožský potok
14297 / 4-2565
nepřístupný

Obecná historie:

Velký roubený patrový mlýn s mansardovou střechou krytou šindelem pochází z konce 18. století. Voda Zbirožského potoka přitékající zděným náhonem poháněla vodní kolo umístěné do lednice v zadní části Zimova mlýna pod vsí. Nad vchodem do mlýna je umístěna pavláčka, dochovala se i charakteristická malá okénka mlýnice.


Historie mlýna obsahuje událost z období:

1366 Michal ze Sedlce koupil poplužní dvůr a poddanské dvory v Ostrově a mlýn pod Ostrovem od Buška z Rosejovic, ketrý tento majetek měl od Karla IV.

1605 hejtman křivoklátského panství pronajal mlýn pod Ostrovcem Matoušovi Uhrovi na období od sv. Havla 1605 do sv. Havla 1606, roční nájem 54 strychů žita , rozřezat 2 kopy klád z císařkých lesů (z každé klády 7 prken) a vykrmit 2 vepře na sádlo.

1610 Hořejší i Dolejší mlýn pod Ostrovcem pronajaty Jakubovi Slapničkovi ze vsi Hradiště, z Hořejšího mlýna nájem 30 strychů žita a vykrmit 1 vepře

Události
  • První písemná zmínka o existenci vodního díla
  • Vznik mlynářské živnosti
Hospodářský typ mlýna
  • Vrchnostenský

1645 Zikmund Kapoun, mlynář pod Ostrovcem (1647 na Podměsteckém mlýně ve Zbirohu)

1651 (soupis poddaných dle víry)  Jan Berounský (52 let), manželka Alžběta (30 let), syn Martin (12 let), všichni svobodní katolíci (syn obrácený)

1652 (urbář): 2 moučná kola, 1 ječná stoupa, nájem 30 strychů žita, 4 kopy míšeňské z vykkrmení vepře, při mlýně 1 pila, však mnoho let zpustlá, ke mlýnu povinny v této době poddaní z vesnic Třebnuška, Ostrovec, Mlečice, Vejvanov, Kladruby, Bujesily

1656-1657 mlynářka Zuzana Malinka

1658 mlynář Václav Malina

1669 mlynář Adam Slavík žádá o úlevu skrz sucho, nemohl mlít 9 týdnů

1671 - Jiřík Procházka, mlynář podostrovecký (SOA Plzeň, Drahoňův Újezd 01, sn. 76) (mGh)

1676 nájemce Jiří Sýkora, o nájem se uchází mlynářka z Drahoňova Kateřina Kalinová, která však má dluh 20 strychů žita za nájem Podzbirožského mlýna, tudíž byl Sýkora upřednos těn. Ještě téhož roku však Sýkora zakoupil mlýn jinde a zdejší mlýn si skutečně pronajímají Kalinovi.

1680 mlynářka Kateřina Kalinová zv. Turková

1685 zemřel Tomáš Kalina, dcera Anna se provdala za mlynářského tovaryše pod Ostrovcem Jakuba Vodrážku, ten tudíž mlýn vyženil

1691 Mlečice, Třebnušku a Ostrovec postihla průtrž mračen, voda sebrala vodní kolo a 2 paleční kola, podemlela stěnu mlýna a zanesla náhon.

1698 zemřel nájemce Jan Ott, syn Adam Ott žádá o převod nájmu, jelikož je všakk mladý a nezkušený, byl mu nájem prozatím povolen jen na 1 rok. Z mlýna se platí 4 kopy grošů a 30 strýchů žita ročně. Adam Ott se osvědčil a drží nájem až do roku 1710.

1703 + Dorota Ottová (matka Adama) ve věku 60 let, 1709 + Dorota, manželka Adama, II. manželka Marie Magdalena

1715 mlynářka Uršula Vodrážková

1718 mlynář Jakub Koutský se oženil s Polyxenou Uršulou, roz. Šulcovou, na mlýně do roku 1725

1728 Jan Ogir s manželkou Benignou

1729 Česká komora nařídila emfyteutický prodej všech dosud neprodaných mlýnů na panství, Jan Ogir však nemá zájem

1730 mlýn prodán Jakubu Desortovi (manželka Anna) za 130 zl. (splácel do r. 1735)

1756 + Anna v 51 letech, František Desort se znovu oženil s Barborou

1767 Fr. Desort zemřel v 78 letech (vdova Barbora + 1785 v 70 letech)

1767 mlýn předal mladšímu synovi Janovi Desortovi s manželkou Annou, mlýn o 2 složeních oceněn na 260 zl., z mlýna se platí 4 zl. 40 kr. za vepře a 34 strychů žita.

1772 Jan Desort zemřel ve věku 37 let, vdova Anna (+ v 80 letech) se ještě téhož roku provdala za Františka Sýkoru (+ 1803 v 56 letech), syna mlynáře z Třebnušky

1772-1794 František Sýkora

1794-1800 Jan Desort, syn Jana Desorta,  s manželkou Marií

1800 mlýn koupil Josef Běhoun

1801 Josef Plic

1807 + mlynář Ivan Stříbrný v 70 letech, vdova Anna

1816 František Mašek s manž. Josefou

1824 František Trejbal (syn mlynářského mistra Václava Trejbala) s manž. Dorotou (+ 1850 v 66 letech)

1833 dceru Františka Trejbala Annu si vzal zbirožský poddaný Jan Zíma (20 let), syn mlynáře a zdejší mlýn vyženil

1844 Jan Zima + v 31 letech na tuberkulózu, mlýn spravuje vdova Anna s mladým stárkem Ignácem Ciprou, 19letý Ignác Cipra však spadl pod paleční kolo, které mu rozmačkalo hlavu a prsa

 

Události
  • Zaznamenání katastrofy (požár, povodeň, zranění, úmrtí, aj.)
Hospodářský typ mlýna
  • Poddanský
  • Vrchnostenský

1862 vdova Anna zemřela v 45 letech, mlýn převzal syn Josef Zima

1863 Josef Zima se v 28 letech oženil Annou, dcerou mlynáře (již 1860 s ní měl nemanželské dítě)

1892 Josef Zima zemřel ve věku 58 let, mlýn zdědil syn František Zima s Josefou roz. Šímovou z mlynářské rodiny

Hospodářský typ mlýna
Námezdní

Ukončeno mletí, pouze hospodářství

Události
  • Zánik mlynářské živnosti
Hospodářský typ mlýna
Námezdní

1930 František Zíma s manželkou Josefou roz. Šímovou ze Šlapanického mlýna

1937 mlýn zdědil syn Josef Zima

Hospodářský typ mlýna
Námezdní

1958 mlýn prohlášen kulturní památkou

vdova Marie Zimová prrodala stodolu a zahradu k výstavbě chat

Marie Tatarová

Příjmení mlynářů působících na mlýně:

  • Jedlička
  • Desort
  • Sýkora
  • Zima
  • Uher
  • Slapnička
  • Kapoun
  • Berounský
  • Malina
  • Slavík
  • Kalina
  • Vodrážka
  • Ott
  • Koutský
  • Ogir
  • Běhoun
  • Plic
  • Stříbrný
  • Mašek
  • Trejbal
  • Zíma
  • Procházka

Historie mlýna také obsahuje:


Zobrazit více

Zobrazit více

Mlýn je vyobrazen na:

Předměty spojené s osobou mlynáře a provozu:

    dochován bez větších přestaveb
    05 2012
      venkovský
      mlýn na potoku (50 - 1000 l/s)
      mlýnice a dům pod jednou střechou, avšak dispozičně oddělené
      • baroko do roku 1800
      roubená
      jednopatrový
      Ostrovecký mlýn na Zbirožském potoce je významná památka z doby kol. roku 1800. Celoroubená patrová stavba, krytá šindelovou mansardovou střechou. Světnice je dvoutraktová. Nad vstupem do síně je pavláčka s vyřezávanou balustrádou, dveře mají dosud trámkové zárubně a dochovaly se pěkně skládané. Sloupky pavláčky podpírají přesah střechy. Na portálku do síně je datace 1804. Ke mlýnu vedou z kamene vyzděné vantroky a lednice. (JP)
      1772: síně, sednice, v ní 2 okna, kamna zelená, v nich kamnovec, železný, výstupek se sešlými kamny a se dvěma okny, ve kterých jsou železné mříže, klenutá kuchyně, chlebová pec se zděným komínem, vše v dobrém stavu. Toto obytní stavení bylo 7 sáhů dklouhéa 5,5 sáhu široké a odhadnuté na 50 zlatých. Z druhé starny byly 3 chlévy a mlátek (11 x 3 sáhy),, jak ve stavení, tak na krytině sešlé.. Také tu byl malý zděný mléčný sklípek s oknem a železnou mříží a na něm sýpka. Mlýnice se zděným komínem a velkým oknem s železnou mříží, na níž byla sýpka s prkny položen, byla odhadnuta na 70 zl.
      1794: v sednici 2 obrazy malované na plátně, za kuchyní komůrka na 3 starny od zdi přistavěná, pod výstupkem klenutý sklep 8 x 6 loktů. Z druhé strany 3 chlévy a mlátek, při něm kůlnička a další chlívec, celkem 13 x 3 sáhy. Sýpka na mlýnici byla sešlá, roubení prostřední.
      Augustin Sedláček: Celoroubené patrové stavení se vymyká běžné zástavbě vesnice, zejména vysoká je úroveň tesařského zpracování tradiční konstrukce. Ojediněle dochovaný typ technického zařízení s výrazným vlivem na stavební vytváření objektu.
      Roubená patrová budova mlýna s valbovou mansardovou střechou obsahuje jak obytnou část tak mlýnici. Objekt představuje mimořádně cenný a vzácně dochovaný typ technické památky.
      patrně konec 18. století
      Stranou od historického jádra obce (mimo VPR) se rozkládá bývalý areál Ostroveckého mlýna čp. 12, jehož součástí je roubená stavba mlýna. Patrový roubený objekt mlýna na obdélném půdoryse. V levé polovině je obytná část se dvěma okenními osami v hlavním i bočním průčelí v přízemí i patře. Do domu se vchází v bočním průčelí pravoúhlým vchodem, nad nímž je krátká krytá pavlač v patře s kuželkovým zábradlím, nesená dvěma sloupky. V pravé polovině domu za síní je patrová mlýnice na vysoké kamenné podezdívce a se zděným přístavkem pro vodní kolo, krytým pultovou stříškou. Budova je kryta mansardovou valbovou střechou se šindelovou krytinou. Lednice spolu s kolem zanikla. Objekt zvaný Zimův byl vystavěn snad již ve 2. polovině 18. století a s určitými obměnami se dochoval ve stavu blízkém 19. století. Voda Zbirožského potoka přitékající zděným náhonem poháněla vodní kolo umístěné do lednice v zadní části mlýna.
      Patrový roubený objekt mlýna. Budova je na obdélném půdorysu. V levé polovině je obytná část se dvěma okenními osami v hlavním i bočním průčelí v přízemí i patře. Do domu se vchází v bočním průčelí pra­voúhlým vchodem, nad nímž je krátká krytá pavlač v patře s kuželkovým zábradlím, nesená dvěma sloupky. V pravé polovině domu za síní je patrová mlýnice na vysoké kamenné podezdívce a se zděným přístavkem pro vodní kolo, krytým pultovou stříškou.
      V přízemí obytné části je velká světnice a menší na boku, sroubená do průčelí a předělená v zadní části komorou. V patře jsou dvě velké jizby. Budova je kryta mansardovou valbovou střechou se šindelovou krytinou.
      Konec 18. století.
      Jedinečně dochovaný přiklad roubeného mlýna, který je ojedinělým dokladem tohoto typu v západních Čechách.
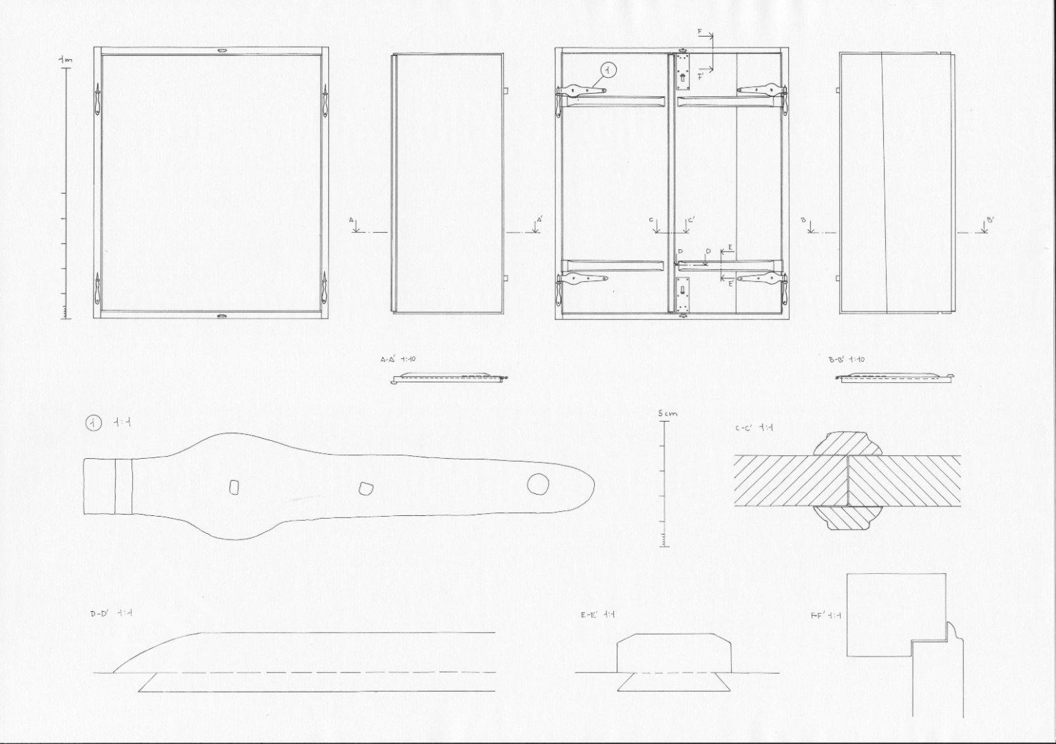
      Okno:
      Mlýn je volně stojící roubená patrová stavba s mansardovou střechou.
      Objekt má v překladu vstupního portálku tesaný letopočet 1801. V patře obytné části se nachází celkem pět oken stejného typu. Zdokumentováno bylo okno v první ose od Z v J průčelí stavby.
      Jedná se o jednoduché dřevěné dvoukřídlé šestitabulkové okno osazené za lícem a s vnitřní okenicí. Ani u jednoho okenního otvoru se „nedochovala“ vnější okna, s největší pravděpodobností zde ani nebyla, mohlo se jednat pouze o sezóně obývanou obytnou místnost, či se do líce osazovaly sezónní výplně. Tesařský rám okenního otvoru vsazený do roubené stěny je z vnitřní a z bočních str. obložen fošnami. Do drážky vytvořené obložením tesařského rámu vsazen rám okna. Rám okenice připevněn k vnitřnímu fošnovému obložení tesařského rámu okenního otvoru. Okenice dvoukřídlé, svlakové s venkovními vodorovnými kovanými závěsy osazenými na dvoudílný kovaný hák se zaoblenou opěrkou jištěnou ve spodní části kovaným hřebem. Svlaky zapuštěny do lichoběžníkové drážky, volné podélné hrany okoseny, „čela“ svlaků zaoblená. Styk křídel okenice oboustranně krytý klapačkou s profilací.
      Vnější klapačka je na levém křídle a vnitřní na pravém. Volné hrany klapaček a křídel okenice zdobeny profilací. Zavírání zajištěno pomocí horní a spodní zapuštěné zástrče na pravém křídle. Jazýček ovládaný zástrčí zapadá do kovaného očka umístěného na čelní straně horní a spodní vodorovné str. rámu okenice. Okenní rám je prostý, na výšku obdélný, s vnějšími volnými hranami zdobenými profilací. Okenní křídla členěna pevnými profilovanými příčlemi do tabulek (každé křídlo na tři tabulky). Styk křídel krytý z vnější strany klapačkou osazenou na levém křídle, na vnitřní str. jemná profilace. Volné hrany okenních křídel zdobeny profilací. Závěsy vnější kované rohovníkové, usazené na vnější kovaný dvoudílný hák se zaoblenou opěrkou jištěnou ve spodní části kovaným
      hřebem. V nárožích křídel kromě vnějších rohovníkových závěsů ještě vnější rohovníkové kování. Konce kování zaobleny a zdobeny tvarováním. Uzavírání okna zajištěno dvojicí plných kovaných půlobrtlíků umístěných na horní a spodní vodorovné str. okenního rámu. Půlobrtlíky přitahují pravé křídlo a jako smýkací plocha zde slouží horní a spodní vodorovné ramínko rohovníku.
      Truhlářské spoje jištěny dřevěnými kolíčky. Zasklení tvořeno pravděpodobně ještě foukaným tabulovým sklem (nerovnosti, bublinky) do drážky bez použití tmelu.
      Celkové řešení prvku včetně způsobu zasklení a specifických detailů (závěsy, tvarování kování, půlobrtlíky) působí poměrně archaicky a je pravděpodobné, že okno včetně okenice pochází z přelomu 18. a 19. stol. V Ostrovec - Lhotka (RO), mlýn čp. 12. Akce 08/2012. Stanislav Plešmíd s. 4/20 konkrétním případě lze okno spojit s letopočtem 1801 na vstupu, ať již poukazuje na výstavbu mlýna či jeho úpravy.
      Autenticky dochovaná výplň okenního otvoru včetně specifických detailů. Cenný příklad jednoduchého okna pozdně barokního typu.
      • pavlač, balkón
      • dveře
      • okno
      • epigrafické památky (nápisy, datování aj.)
      • prostup pro hřídel vodního kola
          Žádná položka není vyplněna
          1652 - 2 kola moučná
          1877: 2 složení
          Zaniklý
          • pila
          Dochovaný
          • stoupa
          1652 - pila uváděna již jako zpustošená, 1 stoupa ječná
          • náhon
          • lednice
          1772 9 sáhů dlouhé vantroky s lednicí
          1877: Nad mlýnem 17,8 m dlouhý a 5,34 m široký jez, k mlýnu vede 4,5 m dlouhý, metr široký a 0,8 m hluboký splav, opatřený 1,75 m vysokým a 1,5 širokým stavítkem, mlýnská strouha 500 m dlouhá, 2 m široká, 2 m hluboká s třemi stavítky (jedno pro jalovou vodu), 3,8 m vysokými a 0,8 m širokými. Vantroky vedoucí ke kolům 5 m dlouhé, 1,75 m široké a metr hluboké.
          Lednice v zadní části mlýna.
          Typvodní kolo na vrchní vodu
          StavZaniklý
          Výrobce
          Popis1772: 2 kola
          1930: 1 kolo na svrchní vodu, hltnost 0,14 m/s, spád 4,41 m, výkon 5,3 HP
          Typvodní kolo na vrchní vodu
          StavZaniklý
          Výrobce
          Popis1772: 2 kola
          1930: 1 kolo na svrchní vodu, hltnost 0,14 m/s, spád 4,41 m, výkon 5,3 HP
          Žádná položka není vyplněna
          Historické technologické prvky
          AutorMinisterstvo financí
          NázevSeznam a mapa vodních děl republiky Československé
          Rok vydání1932
          Místo vydáníPraha
          Další upřesněníSešit 01 (Praha), s. 41
          Odkaz
          Datum citace internetového zdroje
          AutorMinisterstvo financí
          NázevSeznam a mapa vodních děl republiky Československé
          Rok vydání1932
          Místo vydáníPraha
          Další upřesněníSešit 01 (Praha), s. 41
          Odkaz
          Datum citace internetového zdroje
          AutorJosef Klempera
          NázevVodní mlýny v Čechách I.
          Rok vydání2000
          Místo vydáníPraha
          Další upřesněnís. 140
          Odkaz
          Datum citace internetového zdroje
          AutorFrantišek Batěk, Hana Hrachová, Petr Prášil
          NázevZbirožsko na starých pohlednicích
          Rok vydání2007
          Místo vydáníHostivice
          Další upřesněnís. 216
          Odkaz
          Datum citace internetového zdroje
          AutorPetr Rožmberský
          NázevMlýny na Zbirožsku IV.
          Rok vydání2017
          Místo vydáníRokycany
          Další upřesněníSborník Muzea Dr. Bohuslava Horáka v Rokycanech 29/2017, s. 5-13
          Odkaz
          Datum citace internetového zdroje
          AutorNárodní památkový ústav - Památkový katalog
          NázevVodní mlýn
          Odkazhttps://www.pamatkovykatalog.cz/vodni-mlyn-15401145
          Datum citace internetového zdroje07 2025
          AutorLuděk Štěpán - Magda Křivanová
          NázevDílo a život mlynářů a sekerníků v Čechách
          Rok vydání2000
          Místo vydáníPraha
          Další upřesněnís. 248

          Místo uloženíSOA Praha
          Název fonduVelkostatek Zbiroh
          Název archiválieUrbář
          Evidenční jednotkakniha
          Inventární číslo, signatura1
          Místo uloženíSOA Praha
          Název fonduVelkostatek Zbiroh
          Název archiválieUrbář
          Evidenční jednotkakniha
          Inventární číslo, signatura1

          Základní obrázky

          Historické mapy

          Plány - stavební a konstrukční

          Obrazy

          Historické fotografie a pohlednice

          Současné fotografie - exteriér

          Současné fotografie - exteriér - detaily stavebních prvků

          Vytvořeno

          7.10.2012 09:32 uživatelem Jan Pešta (Jan Pešta)

          Majitel nemovitosti

          Není vyplněn

          Spoluautoři

          Uživatel Poslední změna
          Rudolf (Rudolf Šimek) 14.4.2019 22:58
          Piskot 11.10.2012 16:07
          doxa (Jan Škoda) 23.10.2025 22:45
          Jiří Smitka (Jiří Smitka) 28.5.2019 12:27