Mlýn se musí skládat ze dvou kamenů,
k přátelství je třeba dvou lidí.
(turecké přísloví)

Spálený mlýn

Spálený mlýn
48
Chrastavice
344 01
Domažlice
Chrastavice
49° 26' 54.8'', 12° 58' 41.5''
Mlýniště bez mlýna
Rozsáhlá zřícenina mlýna severně od Domažlic, mlýn byl opuštěn v 60. letech 20. stol., poté byl využíván místním JZD až nakonec zcela zpustl.
Fotografie dodám v brzké době.
Samota
Zubřina
volně přístupný

Historie mlýna obsahuje událost z období:

Mlýn je zachycen již na mapě I. voj. mapování.

Dle sdělení J.P.Holého držel v roce 1698 mlýn Johann Cenefels z Mlýnce u Prostřekova. (JV)

V 1720 je ze uváděn jeho syn Johann s manželkou Kateřinou, roz. Volfíkovou. (JV)

Po něm synové Ondřej a Josef Cenefelsovi. (JV)

1764-1768 Abgebrannte Mühle

V roce 1838 byl majitelem mlýna Pawlik Johan.

 

 

Události
  • První písemná zmínka o existenci vodního díla
  • Vznik mlynářské živnosti

1872 - získává mlynář Antonín Pavlík náhradu za úbytek a znečištění vody způsobenou odběrem pro nově založený cukrovar (JV)

1875 - majitelé Václav a Marie Cenefelsovi, zřizování vodního cejchu, mlelo se tehdy na 2 složeních, poháněná 2 vodními koly o prům. 3.30 m (JV)

25.3.1880 - mlýn kupují manželé Jakub a Kateřina Vaňkovi za 12.500 zl. (na mlýně však váznou dluhy 11.153 zl.) (prodejcem je vdova Marie Cenefelsová, na kteoru mlýn převedl manžel již v r. 1877) (JV) Kupující budou poskytovat doživotní výměnek Jiřímu a Markétě Pavlíkovým a Marii Cenefelsové. 

Sčítací operát z r. 1880 zde uvádí Jakuba Vaňka (*1848), manželku Kateřinu a děti, mlynářský pomocník Matěj Filip, čeledín a další pomocné síly. (JV)

15.11.1884 - se snaží Jakub Vaněk prodat mlýn (viz inzerát v ikonografii) (JV)  U mlýna 10 jiter polí a 4 jitra luk.

1886 - sdělení mlynáře Jana Pavlíka (manž. Antonie roz. Teyerlová) domažlickému úřadu, že koupil v exekuci Spálený mlýn. (JV) Zároveň žádá o povolení ku zřízení nových vantrok.

1896 - mlýn přechází na Marii (nejspíš roz. Pavlíkovou) a jejího muže mlynáře Jindřicha Holuba (JV)

1889 - požár mlýna za J. Holuba, škody zmírnil včasný zásah hasičů (JV)

Roku 1904 za mlynáře Jindřicha Holuba byla vodní kola nahrazena Francisovou turbinou s vodorovnou hřídelí pro spád 3,80 metru. Na tyto úpravy si manželé pavlíkovi půjčili u domažlické spořitelny 6.000 K na úrok 4,5 %.

Události
  • Zaznamenání katastrofy (požár, povodeň, zranění, úmrtí, aj.)

1919 - mlýn vyženil Josef Simeth (*1891) z Chodské Lhoty, který si vzal Anežku Holubovou (*1900) (JV)

sčítací operát 1921 - mlynář a jeho manželka Simethovi, kočí Faustin Bufka (*1893), mládek Antonín Kaiser (*1902), služky Kateřina Mazancová (*1904) a Růžena Margotová (*1905), obě z Radonic  (JV)

1930 Josef Simeth

Dle sdělení současníků byl Josef Simeth sečtělý, ale měl potíže s alkoholem. Odešla od něho žena i dcera a na mlýně zůstal s podivínským kočím. (JV)

1941 byl mlýnský provoz zastaven, ačkoliv bylo vybavení funkční. Majitel prý chtěl mlýn využít jako penzion, protože předpokládal, že kolem mlýna povede rušná komunikace. Když se tak nestalo, podlehl depresím a nakonec se na mlýně oběsil. (JV)

Události
  • Zaznamenání katastrofy (požár, povodeň, zranění, úmrtí, aj.)

1951 - mlýn vyloučen z mletí za mzdu (JV)

1957 - vlastnická práva přecházejí na dcery mlynáře J. Simetha (*1891) Miladu a Věru, které o mlýn nejeví zájem. (JV)

V 60tých letech 20. století zde bydlela uzavřená do samoty žena, která se dle vyprávění místních pamětníků považovala za jeptišku zaslíbenou Bohu. (JV)

Mlýn využívalo JZD jako ohradu pro dobytek, sousedé jako zdroj stavebního materiálu. (JV) 

Události
  • Zánik mlynářské živnosti

Po roce 1989 mlýn stále opuštěn, dědičky se nemohly dohodnout na postupu prodeje a raději nechaly mlýn pustnout a spadnout. (JV)

Příjmení mlynářů působících na mlýně:

  • Cenefels
  • Vaněk
  • Pavlík
  • Holub
  • Simeth

Historie mlýna také obsahuje:

1698 Johann Cenefels

1720 Johann Cenefels ml.

Ondřej Cenefels

Josef Cenefels

1838 Jan Pavlík

1872 Antonín Pavlík

1875 Václav Cenefels

1880-1884 Jakub  Vaněk

1886-1896 Jan Pavlík

1896-1919 Jindřich Holub

1919-1941 Josef Simeth

 

Mlýn je vyobrazen na:

Předměty spojené s osobou mlynáře a provozu:

  • Hlavičkový (firemní) papír
  • reklama, inzerát
zřícenina
05 2012
    venkovský
    mlýn na malé řece (1000 – 7000 l/s)
    mlýnice a dům pod jednou střechou, avšak dispozičně oddělené
      zděná
      jednopatrový
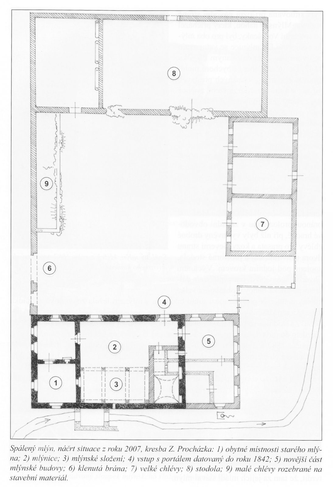
      Mlýnice v jižní části areálu. Vystavěna ve dvou základních stavebních fázích. Starší západní část obsahovala 2 obytné místnosti, obrácené okny k příjezdové komunikaci, a mlýnici s lednicí, která byla situována na jižní návodní straně budovy. Do mlýnice se vstupovalo ze dvora portálem datovaným 1842 (přestavba mlýna). Snad právě v souvislosti s osazením datovaného portálu byla budova rozšířena k východu a získala tak další prostornou obytnou místnost. Mlýn byl přízemní, vysoký krov obsahoval další 2 úrovně podlah, využité pro mlýnské zařízení a též pro ubytování mlýnské chasy.
      Na mlýnský dvůr se vstupovalo klenutou brankou a vyjíždělo velkou klenutou branou, prolomenou v západní obvodové hradbě, při níž byly vystavěny drobné chlívky pro prasata a kozy. Severní stranu dvora uzavírala stáj a prostorná stodola pod společným krovem. Východní obvod uzavřeného dvora vyplňovala další hospodáířská budova, obsahující velké chlévy a stáje. V proluce mezi touto budovou a mlýnicí ležela zeleninová zahrádka a branka umožňující přístup k potoku a studánce mezi mlýnem a odtokem vodního náhonu. Za stodolou se rozkládala velká zahrada se štěpnicí, ohrazená kamennou zdí.
      Před vjezdem do mlýna stojí litinový křížek zasazený do kamenného soklu, na němž je vyryt letopočet 1882 a monogramy P.Jirzi (donátor, patrně člen rozvětveného rodu Pavlíků). Kamenný sokl zasazen do mlecího kamene, kříž stojí pod letitou lípou,
      1995 zde byly ješrě 2 vyřezávané sloupky mlýnské hranice.
      • plastická omítková výzdoba fasád a štítů
      • drobné sakrální památky
      • vrata, brána
      • tesařsky zdobené podpůrné sloupy
      • klenba
      • zcela bez technologie aj.
      Z mlýnského zařízení zůstává pouze hromada rychle se rozpadajícího dřeva.
      Zhlaví svoru mlýnské hranice je v dendrochronologickém muzeu na tvrzi ve Lštění. (RŠ)
      Žádná položka není vyplněna
      1875: 2 složení
      1884: 2 stroje
      1904 instalována 3. mlecí stolice
      vodní síla přenášena z hřídele turbíny řemenem na hlavní transmisi, umístěnou ve mlýnici
      Zaniklý
      • přádelna
      1884 přádelna
      • stavidlo
      • náhon
      • jalový žlab
      • odtokový kanál
      • turbínová kašna
      • lednice
      • turbínový domek
      1875 osazen vodní cejch
      1886 zřízeny nové vantroky
      lednice při jižní návodní straně mlýnice
      mlýnský náhon od Vodolenky, společný pro oba mlýny
      Typturbína Francisova
      StavZaniklý
      Výrobce
      PopisOd roku 1904 mlýn poháněla 1 turbína Francis, průtok 0.35 m3/s, spád 3.8 m, výkon 13.3 HP
      Typturbína Francisova
      StavZaniklý
      Výrobce
      PopisOd roku 1904 mlýn poháněla 1 turbína Francis, průtok 0.35 m3/s, spád 3.8 m, výkon 13.3 HP
      Typvodní kolo na vrchní vodu
      StavZaniklý
      Popis1875: 2 vodní kola o prům. 3,3 m
      Žádná položka není vyplněna
      Historické technologické prvky
      AutorMinisterstvo financí
      NázevSeznam a mapa vodních děl Republiky Československé
      Rok vydání1932
      Místo vydáníPraha
      Další upřesněnísešit 11, str. 11
      Odkaz
      Datum citace internetového zdroje
      AutorMinisterstvo financí
      NázevSeznam a mapa vodních děl Republiky Československé
      Rok vydání1932
      Místo vydáníPraha
      Další upřesněnísešit 11, str. 11
      Odkaz
      Datum citace internetového zdroje
      AutorProcházka Zdeněk
      NázevDomažlické mlýny, mlynáři a mlýnská strouha
      Rok vydání2010
      Místo vydáníDomažlice
      Další upřesnění
      Odkaz
      Datum citace internetového zdroje
      AutorProcházka Zdeněk
      NázevDomažlické mlýny, mlynáři a mlýnská strouha
      Rok vydání2015
      Místo vydáníDomažlice
      Další upřesněnís. 94-104

      Žádná položka není vyplněna

      Základní obrázky

      Historické mapy

      Plány - stavební a konstrukční

      Historické fotografie a pohlednice

      Současné fotografie - exteriér

      Současné fotografie - exteriér - detaily stavebních prvků

      Současné fotografie - interiér

      Současné fotografie - interiér - detaily stavebních prvků

      Současné fotografie - vodní dílo

      Současné fotografie - technologické vybavení

      Současné fotografie - předměty spojené s osobou mlynáře

      Vytvořeno

      1.3.2015 19:36 uživatelem Franklyn (Lukáš Racocha)

      Majitel nemovitosti

      Není vyplněn

      Spoluautoři

      Uživatel Poslední změna
      Rudolf (Rudolf Šimek) 4.7.2025 17:29
      doxa (Jan Škoda) 20.10.2023 23:26
      jirka.vacek87 31.1.2019 20:17