Vyznačení místa budoucího mlýna na indikační skice, 1842, © archivnimapy.cuzk.cz
Parcely katastrální mapy užívané do poč. 50. let na podkladě současné základní mapy, cca 1950, © geoportal.gepro.cz
Mapa mlýna a rozsahu vodního díla, 1934, © Valentin Jaeggle (reprofoto SOkA Semily, Kolssteyn)
Turistická mapa, 1900-1914, © chartae-antiquae.cz
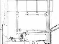
Plán na postavení vodního díla paní Anny Višňákové - Horní Brana č. 248, 20. léta 20. stol., © konstruktér, inženýr, stavitel
Plán na postavení vodního díla paní Anny Višňákové - Horní Brana č. 248, 20. léta 20. stol., © konstruktér, inženýr, stavitel
Plán na postavení vodního díla paní Anny Višňákové - Horní Brana č. 248, 20. léta 20. stol., © konstruktér, inženýr, stavitel
Projekt na vodní dílo - jez, 1934, © Valentin Jaeggle (reprofoto SOkA Semily, Kolssteyn)
Detail profilu turbíny, 1934, © Valentin Jaeggle (reprofoto SOkA Semily, Kolssteyn)
Půdorys turbíny, 1934, © Valentin Jaeggle (reprofoto SOkA Semily, Kolssteyn)
Situace umístění turbíny v objektu, 1934, © Valentin Jaeggle (reprofoto SOkA Semily, Kolssteyn)
pohled na objekt, pavlače - detail, 2015, © David Veverka
Pohled od severu, 2015, © Kolssteyn
Pohled od severozápadu, 2015, © Kolssteyn
Pohled od západu, 2015, © Kolssteyn
Pohled od severovýchodu, 2015, © Kolssteyn
Pohled od východu, 2015, © Kolssteyn
okna a dveře, 2015, © David Veverka, (Prvky na obrázku: dveře, okno)
vstupní dveře, 2015, © David Veverka, (Prvky na obrázku: dveře)
sklepní dveře s kamenným portálem, 2015, © David Veverka, (Prvky na obrázku: dveře, kamenické prvky barokní a mladší)
Okna východního štítu budovy, 2015, © Kolssteyn, (Prvky na obrázku: okno)
Okna severní a východní strany, 2015, © Kolssteyn, (Prvky na obrázku: okno)
Vrata severního vstupu do hospodářské části, 2015, © Kolssteyn, (Prvky na obrázku: vrata, brána)
Západní štít hospodářské části budovy, 2015, © Kolssteyn, (Prvky na obrázku: vyskladňovací otvor)
Detail vyskladňovacího otvoru, 2015, © Kolssteyn, (Prvky na obrázku: vyskladňovací otvor)
Prosvětlovací okénko západního štítu, 2015, © Kolssteyn, (Prvky na obrázku: okno)
Okno severní strany obytné části budovy, 2015, © Kolssteyn, (Prvky na obrázku: okno)
Současný stav obytné místnosti, 2015, Kolssteyn
Současný stav obytné místnosti, 2015, © Kolssteyn
Obytná místnost z druhé strany, 2015, Kolssteyn
Obytná místnost z druhé strany, 2015, © Kolssteyn
Hospodářská část v hlavní zděné budově s průchodem do propojené stodoly, 2015, © Kolssteyn
Vnitřek stodoly, 2015, Kolssteyn
Vnitřek stodoly, 2015, © Kolssteyn
Krytá pavlač, 2015, Kolssteyn
Krytá pavlač, 2015, © Kolssteyn
Druhá část kryté pavlače, 2015, Kolssteyn
Druhá část kryté pavlače, 2015, © Kolssteyn
Menší obytná komůrka, 2015, Kolssteyn
Menší obytná komůrka, 2015, © Kolssteyn
Vstup do sklepení pod obytnou částí, 2015, © Kolssteyn
Podsklepená místnost s odtokovým kanálem pod obytnou částí, 2015, © Kolssteyn
malá Francisova spirální turbina se setrvačníkem, 2015, © David Veverka, (Prvky na obrázku: Turbína)
malá Francisova spirální turbina se setrvačníkem, 2015, © David Veverka, (Prvky na obrázku: Turbína)
malá Francisova spirální turbina - detail ssavka, 2015, © David Veverka, (Prvky na obrázku: Turbína)
malá Francisova spirální turbina - detail - regulační a rozvaděcí okruh, 2015, © David Veverka, (Prvky na obrázku: Turbína)
transmise s řemenovým krytem, 2015, © David Veverka, (Prvky na obrázku: transmise, řemenice, převody)
transmise, 2015, © David Veverka, (Prvky na obrázku: transmise, řemenice, převody)
transmise, 2015, © David Veverka, (Prvky na obrázku: transmise, řemenice, převody)
transmise, 2015, © David Veverka, (Prvky na obrázku: transmise, řemenice, převody)
pec a černá kuchyně, 2015, © David Veverka, (Prvky na obrázku: pekárna)
pozůstatek předlohové transmise s konzolovým uložením, 2015, © David Veverka, (Prvky na obrázku: transmise, řemenice, převody)
krouhačka, 2015, © David Veverka, (Prvky na obrázku: jiné zařízení)
pozůstatek omítací okružní pily, 2015, © David Veverka, (Prvky na obrázku: pila)
Transmise, 2015, © Kolssteyn, (Prvky na obrázku: transmise, řemenice, převody, pohon zemědělských strojů)
Transmise, 2015, © Kolssteyn, (Prvky na obrázku: transmise, řemenice, převody)
Detail transmise, 2015, © Kolssteyn, (Prvky na obrázku: transmise, řemenice, převody)
Cosi, 2015, © Kolssteyn, (Prvky na obrázku: jiné zařízení)
Cosi, 2015, © Kolssteyn
Turbína, 2015, © Kolssteyn, (Prvky na obrázku: Turbína)
Tajemný záběr turbíny, 2015, © Kolssteyn, (Prvky na obrázku: Turbína)
Detail hřídele od turbíny k řemenicím, 2015, © Kolssteyn, (Prvky na obrázku: Turbína)