Jde mu jazyk jako mlýnské kolo.
(hornolužické přirovnání)

Válcový mlýn Eduarda Jabůrka, Mělkův mlýn

Válcový mlýn Eduarda Jabůrka, Mělkův mlýn
23, 123
Blansko - Dolní Lhota
678 01
Blansko
Dolní Lhota
49° 23' 9.8'', 16° 37' 56.3''
Mlýn bez funkčního vodního motoru
Mlýn přestavěný na restauraci stojí v obci na křižovatce ulice k nádraží. Ve mlýně je restaurace, klub a penzion.
U mlýna je nefunkční elektrárna, založená v roce 1908.
Okraj obce, křižovatka s cestou do Ráječka
Svitava
veřejně přístupný

Historie mlýna obsahuje událost z období:

Mlýny v Dolní Lhotě mají dlouhou tradici od 15--16. stol., původně stávaly na jiných místech vzhledem k meandrujícímu toku Svitavy a k zaniklé osadě Zářečná Lhota. Tyto mlýny postupně zanikly.

1597 - první doložená zmínka o mlýnu, nazývaném Bělkův mlýn v Zářeční Lhotě (tehdejší název pro Dolní Lhotu) (Správně Mělkův)

Roku 1601 byl Jiří Mělka 3 roky mlynářem v mlýně pod Bořitovem, byl sice poddán k Blansku, ale asi tam odešel po prodeji mlýna v Dolní Lhotě se souhlasem Žalkovského. Ale měl tam nějaké problémy, dostal se snad i do vězení a hrozila mu pokuta 20 zlatých. Uředník Jiří Skřivánek za něj do Černé Hory orodoval, tak snad pokutu platit nemusel. (doplnila Danuše Šedivá)

2. pol. 16. stol. - uváděn mlýn v Dolní Lhotě

 Zmiňovaný mlýn stál na levém břehu, tehdy na hlavního toku řeky. Při pozdějším číslování domů dostal číslo 23.  V r. 1597 ho vlastní Jíra Mělka, který ho pro finanční potíže v r. 1599 prodává svému pánu janu Žalkovskému. Od té doby je v majetku panstva a mlynáři se na měm střídají jako pachtýři.  (Šimíček)

 

Události
  • První písemná zmínka o existenci vodního díla
  • Vznik mlynářské živnosti

Současný mlýn má základy v 18. stol.

1826 - držitelem mlýna Jan Špatinka

Jako pachtýři se na mlýnu střídají  mlynář Eliáš, Tomáš Moučka, Blažej Smrž, Pavel Klaub, opět mlynáři Moučkové a Johan Borgoth. 

V r. 1781, kdy starohrabata Salmové své mlýny tehejším držitelům na splátky prodávají, kupuje mlýn Martin Moučka.  Ten mlýn odkazuje své neteři Františce Matuškové, rozené Mužíkové, po druhé provdané Špatinkové.  I ta předčasně umírá a mlýn odkazuje svému bratru Josefu Mužíkovi. Mlýn dědí jeho syn Bernard a po něm jeho vnuk Vincenc. Již tehdy je na protějším břehu řeky mlýn deskový, tedy pila.   (Šimíček)

1826 Jan Špatinka

 Koncem 19. století je mlýn již zastaralý a Mužík připravuje stavbu nového mlýna na protějším, pravém břehu řeky. Velká povodeň ale poškodí jez -splav a r. 1889 Mužík zadlužený mlýn s povodní pškozeným splavem prodává nájemci blanenského mlýna Bedřichu Špikovi.  Roku 1891 mlýn vyhoří a není obnoven. Do dnes se z něho zachvala jen klenutá šalanda, obvodové zdi s malými vrátky a obytné stavení. ( Šimíček)

  Za pojistné plnění je ale ještě téhož roku na pravém břehu řeky postaven nový mlýn a na něho převedeny dluhy vázoucí na starém mlýně. Dluhy se nedaří splácet a v dražbě celý objekt r. 1896 kupuje Eduard Jabůrek.  Ten staví nový jez, vyměňuje turbínu a zřizuje vedle mlýna elektrárnu. Současně smluvně zajišťuje odběr proudu do el. sítě knížete Salma.  V r. 1912 mlýn modernizuje a přestavuje do současné podoby. Mlýn dostává popisné číslo 123.  (Šimíček)

V červnu 1891 mlýn vyhořel. Zde je třeba zmínit, že tento mlýn poháněný vodními koly stál na levém břehu řeky. Dnes z něho stojí jen obvodové zdi a zeleně natřená šalanda. (Šimíček)

1907-1908 Eduard Jabůrek vybudoval elektrárnu a sjednal smlouvu o dodávce proudu do společné sítě s elektrocentrálami podniků hraběte Salma-Reifferscheidta

1909 přestavba strojovny

Elektrárna zásobovala mlýn (22 kW) a sítě knížete Salma (20-30 kW). Pracovala společně s centrálami Blansko a Rájec-Jestřebí.

Události
  • Zaznamenání katastrofy (požár, povodeň, zranění, úmrtí, aj.)

 Mlýn i elektrárna jsou trvale funkční ale do r. 1932 je pronajímán velkostatku Rájec, aby v obdobích s nízkým stavem vody mohla být v provozu jen elektrárna. (Šimíček)  

1930 Hugo Salm Raifferscheidt

 

 

   V r. 1943 nový mlýn, elektárnu, postor starého mlýna i obytné stavení dědí jeho synové a vnuci.  Mlýn je znárodněn, v r. 1962 je jeho provoz zastaven, v r. 1972 je ukončen i provoz elektrárny.  Její provoz v r. 1988 krátkodobě obnovuje Mojmír Stránský.

   Mlýn včetně přilehlých pozemků a vodního náhonu je v restituci spolumajitlelům vrácen, ti ho posléze prodávají a dnes je přestavěn na restauraci a klub mlýn.  Elektrárna je přestavěna na dnes nefunkční dílnu.  (Šimíček)

Příjmení mlynářů působících na mlýně:

  • Mělka
  • Moučka
  • Mužík
  • Špik
  • Špatinka
  • Jabůrek
  • Matuška

Historie mlýna také obsahuje:


Zobrazit více

Mlýn je vyobrazen na:

Předměty spojené s osobou mlynáře a provozu:

    částečně adaptován
    04 2014
      venkovský
      mlýn na velkých vodních tocích (7000 l/s a více)
      mlýnice a dům pod jednou střechou, avšak dispozičně oddělené
      • raná moderna do roku 1920
      • moderní 1920 – 1945
      • 1945 – současnost
      zděná
      jednopatrový
      Jedná se o dva stavební celky. Jedním je historická mlýnice, kdysi mělkovského mlýna na levém břehu řeky, z níž se po požáru zachovala šalanda, obytné a hospodářská stavení, s čp. 23.
      Druhým je mlýn na pravém břehu řeky, postavený r. 1891 v zajímavém slohu, s tlustými zdmi a do oblouku klenutými okny. K němu byla v r. 1912 na starých přízemních zdech přistavěna jednopatrová obytná část pro zaměstnance s čp. 123. Mlýnská budova, je původní, novější obytná část je historizujícím způsobem opravena. Dnes je tam restaurace a klub.
      Obojí spojuje budova elektrárny s turbínou, umístěná nad řekou.
      Obytná část mlynáře zůstala v čp. 23. Mezi oběma celky vedla nad řekou spojovací chodba.
      Veřejně přístupné jsou jen restaurace a klub.
      • zdobený zděný štít
      • dveře
      • okno
      • epigrafické památky (nápisy, datování aj.)
      • komín
      • povodňová značka
      • vrata, brána
      • trámový strop
      • klenba
      • dveře
      • epigrafické památky (nápisy, datování aj.)
        V restauraci je jako výzdoba umístěna násypka s pytlem, umístěná tam,kde byly dříve mlecí stolice.
        Pod stropem malá řemenice s kusem řemenu. Víc se asi pro výzdobu nedochovalo.
        Žádná položka není vyplněna
        Dochovaný
        • výroba elektrické energie
        1930 mlýn a elektrárna
        Elektrárna zásobovala mlýn (22 kW) a sítě knížete Salma (20-30 kW). Pracovala společně s centrálami Blansko a Rájec-Jestřebí.
        MVE v provozu od r. 1990,

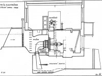
        Zařízení: Kaplanova horizontální kašnová turbína r.v.1936 s hltností 3m3/s a výkonem 40 kW
        V provozu od roku 1936 (1972 - 1990 mimo provoz)
        Celkový instalovaný výkon (v kW) 40
        Provozovatel Mojmír Stránský, Nové náměstí 1745, 560 02, Česká Třebová.
        T.č. elektrárna přeměněna na dílnu.
        • stavidlo
        • náhon
        • normální znamení
        • odtokový kanál
        • turbínová kašna
        • most, propustek
        • turbínový domek
        Za tratí na KÚ obce Ráječko je jez - splav jehož boční pilíře jsou z r. 1899. Odtud vede mlýnský náhon ke mlýnu.
        Jedna z největších hydrotechnických staveb na řece Svitavě. Náhon má středověké kořeny. Jez je největší z vodních děl tohoto typu v Posvitaví. Umožňuje na turbíbně spád 5 m při nejvyšším průtočném množství vody. Celková délka náhonu včetně odpadu činí téměř 4 km. Při renovaci náhonu M.Stránským v 90. letech byly při zemních pracech objeveny zbytky starého pilotování břehů náhonu.Tato technika ochrany břehů, na které se podílel trehdejší mlynář i obec, byla použita v době první republiky po velkých zátopách, způsobených mj. nedbalým oboráváním sousedních rolí. Vedle vodního náhonu na jižní Moravě (Krhovice - Jaroslavice - Laa a.d.Thaya) je tento náhon jedním z nejstarších vodních děl tohoto typu nepřetržitě činných na našem území.
        Typturbína Kaplanova
        StavDochovaný
        VýrobceČKD – Českomoravská Kolben Daněk, Blansko
        Popis1936 - Kaplanova pro spád 4,55m, průtok 2,75m3/sec. Projektovaný výkon 135 HP, kterého nebylo dosaženo. ČKD Blansko.
        Patrně je tam dosud.
        Horizontální kaplanova turbína s natáčením propelery a obrácenou savkou.
        Typturbína Kaplanova
        StavDochovaný
        VýrobceČKD – Českomoravská Kolben Daněk, Blansko
        Popis1936 - Kaplanova pro spád 4,55m, průtok 2,75m3/sec. Projektovaný výkon 135 HP, kterého nebylo dosaženo. ČKD Blansko.
        Patrně je tam dosud.
        Horizontální kaplanova turbína s natáčením propelery a obrácenou savkou.
        Typturbína Girardova
        StavZaniklý
        VýrobceJos. Prokop a synové, Pardubice (a názvy firmy následující)
        Popis1891-1908 Dvouvěncová hraněná Girardova turbína o 50 HP pro spád 4140mm a 1260 l vody/sec. Fa. Prokop Pardubice
        Typturbína Francisova
        StavZaniklý
        VýrobceJos. Prokop a synové, Pardubice (a názvy firmy následující)
        Popis1908 - 1936 Dvouvěncová Francisova turbína po spád 4,55m o výkonu 132HP při 155 ot./min a 3100 l vody/sec.
        1930: 1 turbína Francis, hltnost 3 m3/s, spád 4,5 m, výkon 135 HP
        Žádná položka není vyplněna
        Historické technologické prvky
        AutorInternet - Jiří Doležel
        NázevDolní Lhota - historie
        Rok vydání0
        Místo vydání
        Další upřesněníhistorické fotografie
        Odkazhttp://dolnilhota.com/historie.html
        Datum citace internetového zdroje5.5.2014
        AutorInternet - Jiří Doležel
        NázevDolní Lhota - historie
        Rok vydání0
        Místo vydání
        Další upřesněníhistorické fotografie
        Odkazhttp://dolnilhota.com/historie.html
        Datum citace internetového zdroje5.5.2014
        AutorInternet
        NázevPenzion mlýn
        Rok vydání0
        Místo vydání
        Další upřesnění
        Odkazhttp://www.penzionmlyn.cz/
        Datum citace internetového zdroje5.5.2014
        AutorMinisterstvo financí
        NázevSeznam a mapa vodních děl Republiky československé
        Rok vydání1932
        Místo vydáníPraha
        Další upřesněníBrno, str. 22
        AutorInternet
        NázevAtlas zařízení využívajících obnovitelné zdroje
        Rok vydání0
        Místo vydání
        Další upřesněníDolní Lhota
        Odkazhttp://www.calla.cz/atlas/detail.php?id=795
        Datum citace internetového zdroje5.5.2014
        AutorInternet
        NázevMala vodni elektrarna Dolni Lhota
        Rok vydání0
        Místo vydání
        Další upřesnění
        Odkazhttp://www.geocaching.com/geocache/GC28KF5_mve-dolni-lhota?guid=83193c7b-4a69-41a3-b4f8-cfec8df8f918
        Datum citace internetového zdroje5.5.2014
        AutorInternet - Jiří Jaroš, JIří Merta, Helena Zemánková
        NázevKatalog technických objektů
        Rok vydání0
        Místo vydání
        Další upřesněníPlány mlýna v D. Lhotě
        Odkazhttp://www.starahut.com/at/at07/AT_07_12_Katalog_tech_objekty.pdf
        Datum citace internetového zdroje5.5.2014
        AutorBohumil (Bohuslav) Šimíček
        NázevLhotecký mlýn v historii
        Rok vydání2014
        Místo vydáníBlansko
        Další upřesněníSborník muzea Blansko 2014
        OdkazKe koupi v muzeu
        Datum citace internetového zdroje
        AutorÚstřední svaz obchodních mlýnů v republice Československé
        NázevČeskoslovenské mlynářství
        Rok vydání1936
        Místo vydáníPraha
        Další upřesněnís. 228
        AutorJiří Jaroš
        NázevSlovník technických památek Blanenska
        Rok vydání2000
        Místo vydáníBlansko
        Další upřesněnís. 23-24

        Žádná položka není vyplněna

        Základní obrázky

        Historické mapy

        Plány - stavební a konstrukční

        Historické fotografie a pohlednice

        Současné fotografie - exteriér

        Současné fotografie - exteriér - detaily stavebních prvků

        Současné fotografie - vodní dílo

        Ostatní

        Vytvořeno

        5.5.2014 21:02 uživatelem Helena Špůrová

        Majitel nemovitosti

        Není vyplněn

        Spoluautoři

        Uživatel Poslední změna
        Rudolf (Rudolf Šimek) 22.4.2017 19:27
        Radomír Roup (Radomír Roup) 25.6.2018 13:46
        doxa (Jan Škoda) 16.2.2026 16:33
        Šimíček 9.11.2015 12:38